Поплавковый датчик уровня ОВЕН ПДУ-1.2
Поплавковые датчики уровня ОВЕН ПДУ-1.2 – устройства, предназначенные для сигнализации уровня жидкостей. ОВЕН ПДУ-1.2 применяются в составе систем контроля и регулирования жидкости (воды, растворов, светлых нефтепродуктов и иных жидких сред, в том числе и агрессивных, за исключением коррозионно-активных к материалу датчика) в различных резервуарах. ОВЕН ПДУ-1.2 применяются для измерения как текущего, так и предельного (максимального или минимального) уровня жидкости. Поплавковые датчики уровня имеют общепромышленные и взрывозащищенные исполнения.
Поплавковые датчики уровня ОВЕН устойчивы к пене и пузырькам и могут работать с вязкими жидкостями.
Для контроля уровня невязких жидкостей выпускаются датчики уровня с цилиндрическим поплавком ПДУ-1.2.
Для подключения к АСУ ТП датчики ОВЕН ПДУ снабжены силиконовым кабелем AWG 24 длиной от 1 метра до 120 метров, ОВЕН ПДУ-Н снабжены электрическим разъемом стандарта DIN 43650 A.
Особенности конструкции и монтажа датчиков уровня ОВЕН ПДУ
Датчик уровня имеет поплавок, передвигающийся по вертикальному штоку. Внутри поплавка находится постоянный магнит, а в штоке, представляющем собой полую трубку, находится геркон. Герконовый контакт срабатывает при приближении магнита. Если установка датчика сверху емкости невозможна, то поплавковый датчик уровня можно вмонтировать в стенку емкости или в дно.
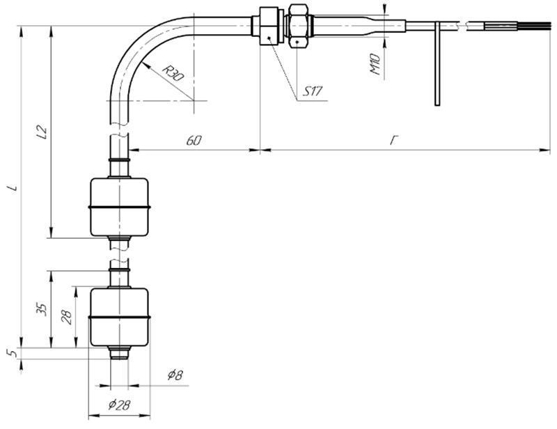
| Варианты крепления датчика уровня ПДУ |
![]() |
Датчики ОВЕН ПДУ производятся с нормально-разомкнутым и нормально-замкнутым контактом.
| Варианты исполнения контактов ОВЕН ПДУ | |
![]() | ![]() |
| ПДУ с нормально-разомкнутым контактом | ПДУ с нормально-замкнутым контактом |
Повышение уровня жидкости в резервуаре приводит к перемещению поплавка вверх и замыканию/размыканию контакта датчика уровня.
Применение датчиков уровня ОВЕН ПДУ
Датчики ОВЕН ПДУ могут работать при температурах до +105°С в химически агрессивных средах. Материал датчика – нержавеющая сталь (12X18H10T).
ОВЕН ПДУ используются для контроля уровня сточных вод, химически агрессивных жидкостей или пищевых продуктов, в том числе вязких жидкостей. Поплавковые датчики могут применяться для контроля уровня жидкости в транспортных средствах, например, для контроля объема топлива в тяжелой технике: грузовиках, экскаваторах, тепловозах. Здесь датчики уровня работают в условиях сильной вибрации и волнения на поверхности жидкости. Для устранения влияния этих факторов поплавковый датчик помещают в специальную демпферную трубу, диаметром чуть больше, чем диаметр поплавка.
Следует помнить, что датчики уровня поплавкового типа не подходят для измерения липких и засыхающих жидкостей, жидкостей с механическими включениями, а также в случае замерзания жидкости.
Технические характеристики
| Параметр | Значение |
| Электрические параметры | |
| Количество сигнализируемых уровней* | 2 |
| Максимальная коммутируемая мощность | 10 Вт |
| Максимальный коммутируемый ток | 0,5 А |
| Максимальное коммутируемое напряжение | 180 В |
| Количество срабатываний при напряжении коммутации постоянного тока 24 В и токе 0,25 А | 1×106 |
| Конструктивные параметры | |
| Расположение оси крепежного отверстия датчика в резервуаре | Горизонтальное |
| Максимальная длина штока до нижнего уровня L | 2500 мм |
| Нормальное состояние контактов датчика | |
| Для ПДУ-1.2 | Нормально-разомкнутое |
| Материал рабочей части датчика: арматура поплавок | Сталь 12Х18Н10Т AISI 316L |
| Степень защиты по ГОСТ 14254 | IP68 для погружной (рабочей) части датчика IP65 для внешней части датчика (от плоскости присоединения к процессу) |
| Минимальная длина кабельного вывода | 1 м** |
* – Зависит от исполнения.
** – Длина кабельного вывода определяется при заказе.
Возможно изготовление модификаций поплавковых датчиков уровня ОВЕН ПДУ с взрывозащитой типа «искробезопасная цепь» 0Ex ia IIC T4 Х.
Все модификации
| Артикул | Длина штока до нижнего уровня, мм | Логика работы контакта нижнего уровня | Длина штока до верхнего уровня, мм | Логика работы контакта верхнего уровня | Длина кабельного вывода, мм | Срок поставки | Стоимость |
|---|---|---|---|---|---|---|---|
| N65651 | 200 | НО | 100 | НО | 1000 | 2...4 недели | 3277 руб. |
| N65652 | 300 | НО | 100 | НО | 1000 | 2...4 недели | 3277 руб. |
| N65653 | 400 | НО | 100 | НО | 1000 | 2...4 недели | 3277 руб. |
| N65654 | 500 | НО | 100 | НО | 1000 | 2...4 недели | 3277 руб. |
| N65655 | 600 | НО | 100 | НО | 1000 | 2...4 недели | 3682 руб. |
| N65656 | 700 | НО | 100 | НО | 1000 | 2...4 недели | 3682 руб. |
| N65657 | 800 | НО | 100 | НО | 1000 | 2...4 недели | 3682 руб. |
| N65658 | 900 | НО | 100 | НО | 1000 | 2...4 недели | 3682 руб. |
| N65659 | 1000 | НО | 100 | НО | 1000 | 2...4 недели | 3682 руб. |
| N65660 | 200 | НЗ | 100 | НО | 1000 | 2...4 недели | 3277 руб. |
| N65661 | 300 | НЗ | 100 | НО | 1000 | 2...4 недели | 3277 руб. |
| N65662 | 400 | НЗ | 100 | НО | 1000 | 2...4 недели | 3277 руб. |
| N65663 | 500 | НЗ | 100 | НО | 1000 | 2...4 недели | 3277 руб. |
| N65664 | 600 | НЗ | 100 | НО | 1000 | 2...4 недели | 3682 руб. |
| N65665 | 700 | НЗ | 100 | НО | 1000 | 2...4 недели | 3682 руб. |
| N65666 | 800 | НЗ | 100 | НО | 1000 | 2...4 недели | 3682 руб. |
| N65667 | 900 | НЗ | 100 | НО | 1000 | 2...4 недели | 3682 руб. |
| N65668 | 1000 | НЗ | 100 | НО | 1000 | 2...4 недели | 3682 руб. |
| N65669 | 300 | НО | 200 | НО | 1000 | 2...4 недели | 3277 руб. |
| N65670 | 400 | НО | 200 | НО | 1000 | 2...4 недели | 3277 руб. |
| N65671 | 500 | НО | 200 | НО | 1000 | 2...4 недели | 3277 руб. |
| N65672 | 600 | НО | 200 | НО | 1000 | 2...4 недели | 3682 руб. |
| N65673 | 700 | НО | 200 | НО | 1000 | 2...4 недели | 3682 руб. |
| N65674 | 800 | НО | 200 | НО | 1000 | 2...4 недели | 3682 руб. |
| N65675 | 900 | НО | 200 | НО | 1000 | 2...4 недели | 3682 руб. |
| N65676 | 1000 | НО | 200 | НО | 1000 | 2...4 недели | 3682 руб. |
| N65677 | 300 | НЗ | 200 | НО | 1000 | 2...4 недели | 3277 руб. |
| N65678 | 400 | НЗ | 200 | НО | 1000 | 2...4 недели | 3277 руб. |
| N65679 | 500 | НЗ | 200 | НО | 1000 | 2...4 недели | 3277 руб. |
| N65680 | 600 | НЗ | 200 | НО | 1000 | 2...4 недели | 3682 руб. |
| N65681 | 700 | НЗ | 200 | НО | 1000 | 2...4 недели | 3682 руб. |
| N65682 | 800 | НЗ | 200 | НО | 1000 | 2...4 недели | 3682 руб. |
| N65683 | 900 | НЗ | 200 | НО | 1000 | 2...4 недели | 3682 руб. |
| N65684 | 1000 | НЗ | 200 | НО | 1000 | 2...4 недели | 3682 руб. |
| N65685 | 400 | НО | 300 | НО | 1000 | 2...4 недели | 3277 руб. |
| N65686 | 500 | НО | 300 | НО | 1000 | 2...4 недели | 3277 руб. |
| N65687 | 600 | НО | 300 | НО | 1000 | 2...4 недели | 3682 руб. |
| N65688 | 700 | НО | 300 | НО | 1000 | 2...4 недели | 3682 руб. |
| N65689 | 800 | НО | 300 | НО | 1000 | 2...4 недели | 3682 руб. |
| N65690 | 900 | НО | 300 | НО | 1000 | 2...4 недели | 3682 руб. |
| N65691 | 1000 | НО | 300 | НО | 1000 | 2...4 недели | 3682 руб. |
| N65692 | 400 | НЗ | 300 | НО | 1000 | 2...4 недели | 3277 руб. |
| N65693 | 500 | НЗ | 300 | НО | 1000 | 2...4 недели | 3277 руб. |
| N65694 | 600 | НЗ | 300 | НО | 1000 | 2...4 недели | 3682 руб. |
| N65695 | 700 | НЗ | 300 | НО | 1000 | 2...4 недели | 3682 руб. |
| N65696 | 800 | НЗ | 300 | НО | 1000 | 2...4 недели | 3682 руб. |
| N65697 | 900 | НЗ | 300 | НО | 1000 | 2...4 недели | 3682 руб. |
| N65698 | 1000 | НЗ | 300 | НО | 1000 | 2...4 недели | 3682 руб. |
| N65699 | 500 | НО | 400 | НО | 1000 | 2...4 недели | 3277 руб. |
| N65700 | 600 | НО | 400 | НО | 1000 | 2...4 недели | 3682 руб. |
| N65701 | 700 | НО | 400 | НО | 1000 | 2...4 недели | 3682 руб. |
| N65702 | 800 | НО | 400 | НО | 1000 | 2...4 недели | 3682 руб. |
| N65703 | 900 | НО | 400 | НО | 1000 | 2...4 недели | 3682 руб. |
| N65704 | 1000 | НО | 400 | НО | 1000 | 2...4 недели | 3682 руб. |
| N65705 | 500 | НЗ | 400 | НО | 1000 | 2...4 недели | 3277 руб. |
| N65706 | 600 | НЗ | 400 | НО | 1000 | 2...4 недели | 3682 руб. |
| N65707 | 700 | НЗ | 400 | НО | 1000 | 2...4 недели | 3682 руб. |
| N65708 | 800 | НЗ | 400 | НО | 1000 | 2...4 недели | 3682 руб. |
| N65709 | 900 | НЗ | 400 | НО | 1000 | 2...4 недели | 3682 руб. |
| N65710 | 1000 | НЗ | 400 | НО | 1000 | 2...4 недели | 3682 руб. |
| N65711 | 600 | НО | 500 | НО | 1000 | 2...4 недели | 3682 руб. |
| N65712 | 700 | НО | 500 | НО | 1000 | 2...4 недели | 3682 руб. |
| N65713 | 800 | НО | 500 | НО | 1000 | 2...4 недели | 3682 руб. |
| N65714 | 900 | НО | 500 | НО | 1000 | 2...4 недели | 3682 руб. |
| N65715 | 1000 | НО | 500 | НО | 1000 | 2...4 недели | 3682 руб. |
| N65716 | 600 | НЗ | 500 | НО | 1000 | 2...4 недели | 3682 руб. |
| N65717 | 700 | НЗ | 500 | НО | 1000 | 2...4 недели | 3682 руб. |
| N65718 | 800 | НЗ | 500 | НО | 1000 | 2...4 недели | 3682 руб. |
| N65719 | 900 | НЗ | 500 | НО | 1000 | 2...4 недели | 3682 руб. |
| N65720 | 1000 | НЗ | 500 | НО | 1000 | 2...4 недели | 3682 руб. |
| N65721 | 700 | НО | 600 | НО | 1000 | 2...4 недели | 3682 руб. |
| N65722 | 800 | НО | 600 | НО | 1000 | 2...4 недели | 3682 руб. |
| N65723 | 900 | НО | 600 | НО | 1000 | 2...4 недели | 3682 руб. |
| N65724 | 1000 | НО | 600 | НО | 1000 | 2...4 недели | 3682 руб. |
| N65725 | 700 | НЗ | 600 | НО | 1000 | 2...4 недели | 3682 руб. |
| N65726 | 800 | НЗ | 600 | НО | 1000 | 2...4 недели | 3682 руб. |
| N65727 | 900 | НЗ | 600 | НО | 1000 | 2...4 недели | 3682 руб. |
| N65728 | 1000 | НЗ | 600 | НО | 1000 | 2...4 недели | 3682 руб. |
| N65729 | 800 | НО | 700 | НО | 1000 | 2...4 недели | 3682 руб. |
| N65730 | 900 | НО | 700 | НО | 1000 | 2...4 недели | 3682 руб. |
| N65731 | 1000 | НО | 700 | НО | 1000 | 2...4 недели | 3682 руб. |
| N65732 | 800 | НЗ | 700 | НО | 1000 | 2...4 недели | 3682 руб. |
| N65733 | 900 | НЗ | 700 | НО | 1000 | 2...4 недели | 3682 руб. |
| N65734 | 1000 | НЗ | 700 | НО | 1000 | 2...4 недели | 3682 руб. |
| N65735 | 900 | НО | 800 | НО | 1000 | 2...4 недели | 3682 руб. |
| N65736 | 1000 | НО | 800 | НО | 1000 | 2...4 недели | 3682 руб. |
| N65737 | 900 | НЗ | 800 | НО | 1000 | 2...4 недели | 3682 руб. |
| N65738 | 1000 | НЗ | 800 | НО | 1000 | 2...4 недели | 3682 руб. |
| N65739 | 1000 | НО | 900 | НО | 1000 | 2...4 недели | 3682 руб. |
| N65740 | 1000 | НЗ | 900 | НО | 1000 | 2...4 недели | 3682 руб. |
| N65741 | 200 | НО | 100 | НЗ | 1000 | 2...4 недели | 3277 руб. |
| N65742 | 300 | НО | 100 | НЗ | 1000 | 2...4 недели | 3277 руб. |
| N65743 | 400 | НО | 100 | НЗ | 1000 | 2...4 недели | 3277 руб. |
| N65744 | 500 | НО | 100 | НЗ | 1000 | 2...4 недели | 3277 руб. |
| N65745 | 600 | НО | 100 | НЗ | 1000 | 2...4 недели | 3682 руб. |
| N65746 | 700 | НО | 100 | НЗ | 1000 | 2...4 недели | 3682 руб. |
| N65747 | 800 | НО | 100 | НЗ | 1000 | 2...4 недели | 3682 руб. |
| N65748 | 900 | НО | 100 | НЗ | 1000 | 2...4 недели | 3682 руб. |
| N65749 | 1000 | НО | 100 | НЗ | 1000 | 2...4 недели | 3682 руб. |
| N65750 | 200 | НЗ | 100 | НЗ | 1000 | 2...4 недели | 3277 руб. |
| N65751 | 300 | НЗ | 100 | НЗ | 1000 | 2...4 недели | 3277 руб. |
| N65752 | 400 | НЗ | 100 | НЗ | 1000 | 2...4 недели | 3277 руб. |
| N65753 | 500 | НЗ | 100 | НЗ | 1000 | 2...4 недели | 3277 руб. |
| N65754 | 600 | НЗ | 100 | НЗ | 1000 | 2...4 недели | 3682 руб. |
| N65755 | 700 | НЗ | 100 | НЗ | 1000 | 2...4 недели | 3682 руб. |
| N65756 | 800 | НЗ | 100 | НЗ | 1000 | 2...4 недели | 3682 руб. |
| N65757 | 900 | НЗ | 100 | НЗ | 1000 | 2...4 недели | 3682 руб. |
| N65758 | 1000 | НЗ | 100 | НЗ | 1000 | 2...4 недели | 3682 руб. |
| N65759 | 300 | НО | 200 | НЗ | 1000 | 2...4 недели | 3277 руб. |
| N65760 | 400 | НО | 200 | НЗ | 1000 | 2...4 недели | 3277 руб. |
| N65761 | 500 | НО | 200 | НЗ | 1000 | 2...4 недели | 3277 руб. |
| N65762 | 600 | НО | 200 | НЗ | 1000 | 2...4 недели | 3682 руб. |
| N65763 | 700 | НО | 200 | НЗ | 1000 | 2...4 недели | 3682 руб. |
| N65764 | 800 | НО | 200 | НЗ | 1000 | 2...4 недели | 3682 руб. |
| N65765 | 900 | НО | 200 | НЗ | 1000 | 2...4 недели | 3682 руб. |
| N65766 | 1000 | НО | 200 | НЗ | 1000 | 2...4 недели | 3682 руб. |
| N65767 | 300 | НЗ | 200 | НЗ | 1000 | 2...4 недели | 3277 руб. |
| N65768 | 400 | НЗ | 200 | НЗ | 1000 | 2...4 недели | 3277 руб. |
| N65769 | 500 | НЗ | 200 | НЗ | 1000 | 2...4 недели | 3277 руб. |
| N65770 | 600 | НЗ | 200 | НЗ | 1000 | 2...4 недели | 3682 руб. |
| N65771 | 700 | НЗ | 200 | НЗ | 1000 | 2...4 недели | 3682 руб. |
| N65772 | 800 | НЗ | 200 | НЗ | 1000 | 2...4 недели | 3682 руб. |
| N65773 | 900 | НЗ | 200 | НЗ | 1000 | 2...4 недели | 3682 руб. |
| N65774 | 1000 | НЗ | 200 | НЗ | 1000 | 2...4 недели | 3682 руб. |
| N65775 | 400 | НО | 300 | НЗ | 1000 | 2...4 недели | 3277 руб. |
| N65776 | 500 | НО | 300 | НЗ | 1000 | 2...4 недели | 3277 руб. |
| N65777 | 600 | НО | 300 | НЗ | 1000 | 2...4 недели | 3682 руб. |
| N65778 | 700 | НО | 300 | НЗ | 1000 | 2...4 недели | 3682 руб. |
| N65779 | 800 | НО | 300 | НЗ | 1000 | 2...4 недели | 3682 руб. |
| N65780 | 900 | НО | 300 | НЗ | 1000 | 2...4 недели | 3682 руб. |
| N65781 | 1000 | НО | 300 | НЗ | 1000 | 2...4 недели | 3682 руб. |
| N65782 | 400 | НЗ | 300 | НЗ | 1000 | 2...4 недели | 3277 руб. |
| N65783 | 500 | НЗ | 300 | НЗ | 1000 | 2...4 недели | 3277 руб. |
| N65784 | 600 | НЗ | 300 | НЗ | 1000 | 2...4 недели | 3682 руб. |
| N65785 | 700 | НЗ | 300 | НЗ | 1000 | 2...4 недели | 3682 руб. |
| N65786 | 800 | НЗ | 300 | НЗ | 1000 | 2...4 недели | 3682 руб. |
| N65787 | 900 | НЗ | 300 | НЗ | 1000 | 2...4 недели | 3682 руб. |
| N65788 | 1000 | НЗ | 300 | НЗ | 1000 | 2...4 недели | 3682 руб. |
| N65789 | 500 | НО | 400 | НЗ | 1000 | 2...4 недели | 3277 руб. |
| N65790 | 600 | НО | 400 | НЗ | 1000 | 2...4 недели | 3682 руб. |
| N65791 | 700 | НО | 400 | НЗ | 1000 | 2...4 недели | 3682 руб. |
| N65792 | 800 | НО | 400 | НЗ | 1000 | 2...4 недели | 3682 руб. |
| N65793 | 900 | НО | 400 | НЗ | 1000 | 2...4 недели | 3682 руб. |
| N65794 | 1000 | НО | 400 | НЗ | 1000 | 2...4 недели | 3682 руб. |
| N65795 | 500 | НЗ | 400 | НЗ | 1000 | 2...4 недели | 3277 руб. |
| N65796 | 600 | НЗ | 400 | НЗ | 1000 | 2...4 недели | 3682 руб. |
| N65797 | 700 | НЗ | 400 | НЗ | 1000 | 2...4 недели | 3682 руб. |
| N65798 | 800 | НЗ | 400 | НЗ | 1000 | 2...4 недели | 3682 руб. |
| N65799 | 900 | НЗ | 400 | НЗ | 1000 | 2...4 недели | 3682 руб. |
| N65800 | 1000 | НЗ | 400 | НЗ | 1000 | 2...4 недели | 3682 руб. |
| N65801 | 600 | НО | 500 | НЗ | 1000 | 2...4 недели | 3682 руб. |
| N65802 | 700 | НО | 500 | НЗ | 1000 | 2...4 недели | 3682 руб. |
| N65803 | 800 | НО | 500 | НЗ | 1000 | 2...4 недели | 3682 руб. |
| N65804 | 900 | НО | 500 | НЗ | 1000 | 2...4 недели | 3682 руб. |
| N65805 | 1000 | НО | 500 | НЗ | 1000 | 2...4 недели | 3682 руб. |
| N65806 | 600 | НЗ | 500 | НЗ | 1000 | 2...4 недели | 3682 руб. |
| N65807 | 700 | НЗ | 500 | НЗ | 1000 | 2...4 недели | 3682 руб. |
| N65808 | 800 | НЗ | 500 | НЗ | 1000 | 2...4 недели | 3682 руб. |
| N65809 | 900 | НЗ | 500 | НЗ | 1000 | 2...4 недели | 3682 руб. |
| N65810 | 1000 | НЗ | 500 | НЗ | 1000 | 2...4 недели | 3682 руб. |
| N65811 | 700 | НО | 600 | НЗ | 1000 | 2...4 недели | 3682 руб. |
| N65812 | 800 | НО | 600 | НЗ | 1000 | 2...4 недели | 3682 руб. |
| N65813 | 900 | НО | 600 | НЗ | 1000 | 2...4 недели | 3682 руб. |
| N65814 | 1000 | НО | 600 | НЗ | 1000 | 2...4 недели | 3682 руб. |
| N65815 | 700 | НЗ | 600 | НЗ | 1000 | 2...4 недели | 3682 руб. |
| N65816 | 800 | НЗ | 600 | НЗ | 1000 | 2...4 недели | 3682 руб. |
| N65817 | 900 | НЗ | 600 | НЗ | 1000 | 2...4 недели | 3682 руб. |
| N65818 | 1000 | НЗ | 600 | НЗ | 1000 | 2...4 недели | 3682 руб. |
| N65819 | 800 | НО | 700 | НЗ | 1000 | 2...4 недели | 3682 руб. |
| N65820 | 900 | НО | 700 | НЗ | 1000 | 2...4 недели | 3682 руб. |
| N65821 | 1000 | НО | 700 | НЗ | 1000 | 2...4 недели | 3682 руб. |
| N65822 | 800 | НЗ | 700 | НЗ | 1000 | 2...4 недели | 3682 руб. |
| N65823 | 900 | НЗ | 700 | НЗ | 1000 | 2...4 недели | 3682 руб. |
| N65824 | 1000 | НЗ | 700 | НЗ | 1000 | 2...4 недели | 3682 руб. |
| N65825 | 900 | НО | 800 | НЗ | 1000 | 2...4 недели | 3682 руб. |
| N65826 | 1000 | НО | 800 | НЗ | 1000 | 2...4 недели | 3682 руб. |
| N65827 | 900 | НЗ | 800 | НЗ | 1000 | 2...4 недели | 3682 руб. |
| N65828 | 1000 | НЗ | 800 | НЗ | 1000 | 2...4 недели | 3682 руб. |
| N65829 | 1000 | НО | 900 | НЗ | 1000 | 2...4 недели | 3682 руб. |
| N65830 | 1000 | НЗ | 900 | НЗ | 1000 | 2...4 недели | 3682 руб. |
| N65831 | 200 | НО | 100 | НО | 2000 | 2...4 недели | 3514 руб. |
| N65832 | 300 | НО | 100 | НО | 2000 | 2...4 недели | 3514 руб. |
| N65833 | 400 | НО | 100 | НО | 2000 | 2...4 недели | 3514 руб. |
| N65834 | 500 | НО | 100 | НО | 2000 | 2...4 недели | 3514 руб. |
| N65835 | 600 | НО | 100 | НО | 2000 | 2...4 недели | 3919 руб. |
| N65836 | 700 | НО | 100 | НО | 2000 | 2...4 недели | 3919 руб. |
| N65837 | 800 | НО | 100 | НО | 2000 | 2...4 недели | 3919 руб. |
| N65838 | 900 | НО | 100 | НО | 2000 | 2...4 недели | 3919 руб. |
| N65839 | 1000 | НО | 100 | НО | 2000 | 2...4 недели | 3919 руб. |
| N65840 | 200 | НЗ | 100 | НО | 2000 | 2...4 недели | 3514 руб. |
| N65841 | 300 | НЗ | 100 | НО | 2000 | 2...4 недели | 3514 руб. |
| N65842 | 400 | НЗ | 100 | НО | 2000 | 2...4 недели | 3514 руб. |
| N65843 | 500 | НЗ | 100 | НО | 2000 | 2...4 недели | 3514 руб. |
| N65844 | 600 | НЗ | 100 | НО | 2000 | 2...4 недели | 3919 руб. |
| N65845 | 700 | НЗ | 100 | НО | 2000 | 2...4 недели | 3919 руб. |
| N65846 | 800 | НЗ | 100 | НО | 2000 | 2...4 недели | 3919 руб. |
| N65847 | 900 | НЗ | 100 | НО | 2000 | 2...4 недели | 3919 руб. |
| N65848 | 1000 | НЗ | 100 | НО | 2000 | 2...4 недели | 3919 руб. |
| N65849 | 300 | НО | 200 | НО | 2000 | 2...4 недели | 3514 руб. |
| N65850 | 400 | НО | 200 | НО | 2000 | 2...4 недели | 3514 руб. |
| N65851 | 500 | НО | 200 | НО | 2000 | 2...4 недели | 3514 руб. |
| N65852 | 600 | НО | 200 | НО | 2000 | 2...4 недели | 3919 руб. |
| N65853 | 700 | НО | 200 | НО | 2000 | 2...4 недели | 3919 руб. |
| N65854 | 800 | НО | 200 | НО | 2000 | 2...4 недели | 3919 руб. |
| N65855 | 900 | НО | 200 | НО | 2000 | 2...4 недели | 3919 руб. |
| N65856 | 1000 | НО | 200 | НО | 2000 | 2...4 недели | 3919 руб. |
| N65857 | 300 | НЗ | 200 | НО | 2000 | 2...4 недели | 3514 руб. |
| N65858 | 400 | НЗ | 200 | НО | 2000 | 2...4 недели | 3514 руб. |
| N65859 | 500 | НЗ | 200 | НО | 2000 | 2...4 недели | 3514 руб. |
| N65860 | 600 | НЗ | 200 | НО | 2000 | 2...4 недели | 3919 руб. |
| N65861 | 700 | НЗ | 200 | НО | 2000 | 2...4 недели | 3919 руб. |
| N65862 | 800 | НЗ | 200 | НО | 2000 | 2...4 недели | 3919 руб. |
| N65863 | 900 | НЗ | 200 | НО | 2000 | 2...4 недели | 3919 руб. |
| N65864 | 1000 | НЗ | 200 | НО | 2000 | 2...4 недели | 3919 руб. |
| N65865 | 400 | НО | 300 | НО | 2000 | 2...4 недели | 3514 руб. |
| N65866 | 500 | НО | 300 | НО | 2000 | 2...4 недели | 3514 руб. |
| N65867 | 600 | НО | 300 | НО | 2000 | 2...4 недели | 3919 руб. |
| N65868 | 700 | НО | 300 | НО | 2000 | 2...4 недели | 3919 руб. |
| N65869 | 800 | НО | 300 | НО | 2000 | 2...4 недели | 3919 руб. |
| N65870 | 900 | НО | 300 | НО | 2000 | 2...4 недели | 3919 руб. |
| N65871 | 1000 | НО | 300 | НО | 2000 | 2...4 недели | 3919 руб. |
| N65872 | 400 | НЗ | 300 | НО | 2000 | 2...4 недели | 3514 руб. |
| N65873 | 500 | НЗ | 300 | НО | 2000 | 2...4 недели | 3514 руб. |
| N65874 | 600 | НЗ | 300 | НО | 2000 | 2...4 недели | 3919 руб. |
| N65875 | 700 | НЗ | 300 | НО | 2000 | 2...4 недели | 3919 руб. |
| N65876 | 800 | НЗ | 300 | НО | 2000 | 2...4 недели | 3919 руб. |
| N65877 | 900 | НЗ | 300 | НО | 2000 | 2...4 недели | 3919 руб. |
| N65878 | 1000 | НЗ | 300 | НО | 2000 | 2...4 недели | 3919 руб. |
| N65879 | 500 | НО | 400 | НО | 2000 | 2...4 недели | 3514 руб. |
| N65880 | 600 | НО | 400 | НО | 2000 | 2...4 недели | 3919 руб. |
| N65881 | 700 | НО | 400 | НО | 2000 | 2...4 недели | 3919 руб. |
| N65882 | 800 | НО | 400 | НО | 2000 | 2...4 недели | 3919 руб. |
| N65883 | 900 | НО | 400 | НО | 2000 | 2...4 недели | 3919 руб. |
| N65884 | 1000 | НО | 400 | НО | 2000 | 2...4 недели | 3919 руб. |
| N65885 | 500 | НЗ | 400 | НО | 2000 | 2...4 недели | 3514 руб. |
| N65886 | 600 | НЗ | 400 | НО | 2000 | 2...4 недели | 3919 руб. |
| N65887 | 700 | НЗ | 400 | НО | 2000 | 2...4 недели | 3919 руб. |
| N65888 | 800 | НЗ | 400 | НО | 2000 | 2...4 недели | 3919 руб. |
| N65889 | 900 | НЗ | 400 | НО | 2000 | 2...4 недели | 3919 руб. |
| N65890 | 1000 | НЗ | 400 | НО | 2000 | 2...4 недели | 3919 руб. |
| N65891 | 600 | НО | 500 | НО | 2000 | 2...4 недели | 3919 руб. |
| N65892 | 700 | НО | 500 | НО | 2000 | 2...4 недели | 3919 руб. |
| N65893 | 800 | НО | 500 | НО | 2000 | 2...4 недели | 3919 руб. |
| N65894 | 900 | НО | 500 | НО | 2000 | 2...4 недели | 3919 руб. |
| N65895 | 1000 | НО | 500 | НО | 2000 | 2...4 недели | 3919 руб. |
| N65896 | 600 | НЗ | 500 | НО | 2000 | 2...4 недели | 3919 руб. |
| N65897 | 700 | НЗ | 500 | НО | 2000 | 2...4 недели | 3919 руб. |
| N65898 | 800 | НЗ | 500 | НО | 2000 | 2...4 недели | 3919 руб. |
| N65899 | 900 | НЗ | 500 | НО | 2000 | 2...4 недели | 3919 руб. |
| N65900 | 1000 | НЗ | 500 | НО | 2000 | 2...4 недели | 3919 руб. |
| N65901 | 700 | НО | 600 | НО | 2000 | 2...4 недели | 3919 руб. |
| N65902 | 800 | НО | 600 | НО | 2000 | 2...4 недели | 3919 руб. |
| N65903 | 900 | НО | 600 | НО | 2000 | 2...4 недели | 3919 руб. |
| N65904 | 1000 | НО | 600 | НО | 2000 | 2...4 недели | 3919 руб. |
| N65905 | 700 | НЗ | 600 | НО | 2000 | 2...4 недели | 3919 руб. |
| N65906 | 800 | НЗ | 600 | НО | 2000 | 2...4 недели | 3919 руб. |
| N65907 | 900 | НЗ | 600 | НО | 2000 | 2...4 недели | 3919 руб. |
| N65908 | 1000 | НЗ | 600 | НО | 2000 | 2...4 недели | 3919 руб. |
| N65909 | 800 | НО | 700 | НО | 2000 | 2...4 недели | 3919 руб. |
| N65910 | 900 | НО | 700 | НО | 2000 | 2...4 недели | 3919 руб. |
| N65911 | 1000 | НО | 700 | НО | 2000 | 2...4 недели | 3919 руб. |
| N65912 | 800 | НЗ | 700 | НО | 2000 | 2...4 недели | 3919 руб. |
| N65913 | 900 | НЗ | 700 | НО | 2000 | 2...4 недели | 3919 руб. |
| N65914 | 1000 | НЗ | 700 | НО | 2000 | 2...4 недели | 3919 руб. |
| N65915 | 900 | НО | 800 | НО | 2000 | 2...4 недели | 3919 руб. |
| N65916 | 1000 | НО | 800 | НО | 2000 | 2...4 недели | 3919 руб. |
| N65917 | 900 | НЗ | 800 | НО | 2000 | 2...4 недели | 3919 руб. |
| N65918 | 1000 | НЗ | 800 | НО | 2000 | 2...4 недели | 3919 руб. |
| N65919 | 1000 | НО | 900 | НО | 2000 | 2...4 недели | 3919 руб. |
| N65920 | 1000 | НЗ | 900 | НО | 2000 | 2...4 недели | 3919 руб. |
| N65921 | 200 | НО | 100 | НЗ | 2000 | 2...4 недели | 3514 руб. |
| N65922 | 300 | НО | 100 | НЗ | 2000 | 2...4 недели | 3514 руб. |
| N65923 | 400 | НО | 100 | НЗ | 2000 | 2...4 недели | 3514 руб. |
| N65924 | 500 | НО | 100 | НЗ | 2000 | 2...4 недели | 3514 руб. |
| N65925 | 600 | НО | 100 | НЗ | 2000 | 2...4 недели | 3919 руб. |
| N65926 | 700 | НО | 100 | НЗ | 2000 | 2...4 недели | 3919 руб. |
| N65927 | 800 | НО | 100 | НЗ | 2000 | 2...4 недели | 3919 руб. |
| N65928 | 900 | НО | 100 | НЗ | 2000 | 2...4 недели | 3919 руб. |
| N65929 | 1000 | НО | 100 | НЗ | 2000 | 2...4 недели | 3919 руб. |
| N65930 | 200 | НЗ | 100 | НЗ | 2000 | 2...4 недели | 3514 руб. |
| N65931 | 300 | НЗ | 100 | НЗ | 2000 | 2...4 недели | 3514 руб. |
| N65932 | 400 | НЗ | 100 | НЗ | 2000 | 2...4 недели | 3514 руб. |
| N65933 | 500 | НЗ | 100 | НЗ | 2000 | 2...4 недели | 3514 руб. |
| N65934 | 600 | НЗ | 100 | НЗ | 2000 | 2...4 недели | 3919 руб. |
| N65935 | 700 | НЗ | 100 | НЗ | 2000 | 2...4 недели | 3919 руб. |
| N65936 | 800 | НЗ | 100 | НЗ | 2000 | 2...4 недели | 3919 руб. |
| N65937 | 900 | НЗ | 100 | НЗ | 2000 | 2...4 недели | 3919 руб. |
| N65938 | 1000 | НЗ | 100 | НЗ | 2000 | 2...4 недели | 3919 руб. |
| N65939 | 300 | НО | 200 | НЗ | 2000 | 2...4 недели | 3514 руб. |
| N65940 | 400 | НО | 200 | НЗ | 2000 | 2...4 недели | 3514 руб. |
| N65941 | 500 | НО | 200 | НЗ | 2000 | 2...4 недели | 3514 руб. |
| N65942 | 600 | НО | 200 | НЗ | 2000 | 2...4 недели | 3919 руб. |
| N65943 | 700 | НО | 200 | НЗ | 2000 | 2...4 недели | 3919 руб. |
| N65944 | 800 | НО | 200 | НЗ | 2000 | 2...4 недели | 3919 руб. |
| N65945 | 900 | НО | 200 | НЗ | 2000 | 2...4 недели | 3919 руб. |
| N65946 | 1000 | НО | 200 | НЗ | 2000 | 2...4 недели | 3919 руб. |
| N65947 | 300 | НЗ | 200 | НЗ | 2000 | 2...4 недели | 3514 руб. |
| N65948 | 400 | НЗ | 200 | НЗ | 2000 | 2...4 недели | 3514 руб. |
| N65949 | 500 | НЗ | 200 | НЗ | 2000 | 2...4 недели | 3514 руб. |
| N65950 | 600 | НЗ | 200 | НЗ | 2000 | 2...4 недели | 3919 руб. |
| N65951 | 700 | НЗ | 200 | НЗ | 2000 | 2...4 недели | 3919 руб. |
| N65952 | 800 | НЗ | 200 | НЗ | 2000 | 2...4 недели | 3919 руб. |
| N65953 | 900 | НЗ | 200 | НЗ | 2000 | 2...4 недели | 3919 руб. |
| N65954 | 1000 | НЗ | 200 | НЗ | 2000 | 2...4 недели | 3919 руб. |
| N65955 | 400 | НО | 300 | НЗ | 2000 | 2...4 недели | 3514 руб. |
| N65956 | 500 | НО | 300 | НЗ | 2000 | 2...4 недели | 3514 руб. |
| N65957 | 600 | НО | 300 | НЗ | 2000 | 2...4 недели | 3919 руб. |
| N65958 | 700 | НО | 300 | НЗ | 2000 | 2...4 недели | 3919 руб. |
| N65959 | 800 | НО | 300 | НЗ | 2000 | 2...4 недели | 3919 руб. |
| N65960 | 900 | НО | 300 | НЗ | 2000 | 2...4 недели | 3919 руб. |
| N65961 | 1000 | НО | 300 | НЗ | 2000 | 2...4 недели | 3919 руб. |
| N65962 | 400 | НЗ | 300 | НЗ | 2000 | 2...4 недели | 3514 руб. |
| N65963 | 500 | НЗ | 300 | НЗ | 2000 | 2...4 недели | 3514 руб. |
| N65964 | 600 | НЗ | 300 | НЗ | 2000 | 2...4 недели | 3919 руб. |
| N65965 | 700 | НЗ | 300 | НЗ | 2000 | 2...4 недели | 3919 руб. |
| N65966 | 800 | НЗ | 300 | НЗ | 2000 | 2...4 недели | 3919 руб. |
| N65967 | 900 | НЗ | 300 | НЗ | 2000 | 2...4 недели | 3919 руб. |
| N65968 | 1000 | НЗ | 300 | НЗ | 2000 | 2...4 недели | 3919 руб. |
| N65969 | 500 | НО | 400 | НЗ | 2000 | 2...4 недели | 3514 руб. |
| N65970 | 600 | НО | 400 | НЗ | 2000 | 2...4 недели | 3919 руб. |
| N65971 | 700 | НО | 400 | НЗ | 2000 | 2...4 недели | 3919 руб. |
| N65972 | 800 | НО | 400 | НЗ | 2000 | 2...4 недели | 3919 руб. |
| N65973 | 900 | НО | 400 | НЗ | 2000 | 2...4 недели | 3919 руб. |
| N65974 | 1000 | НО | 400 | НЗ | 2000 | 2...4 недели | 3919 руб. |
| N65975 | 500 | НЗ | 400 | НЗ | 2000 | 2...4 недели | 3514 руб. |
| N65976 | 600 | НЗ | 400 | НЗ | 2000 | 2...4 недели | 3919 руб. |
| N65977 | 700 | НЗ | 400 | НЗ | 2000 | 2...4 недели | 3919 руб. |
| N65978 | 800 | НЗ | 400 | НЗ | 2000 | 2...4 недели | 3919 руб. |
| N65979 | 900 | НЗ | 400 | НЗ | 2000 | 2...4 недели | 3919 руб. |
| N65980 | 1000 | НЗ | 400 | НЗ | 2000 | 2...4 недели | 3919 руб. |
| N65981 | 600 | НО | 500 | НЗ | 2000 | 2...4 недели | 3919 руб. |
| N65982 | 700 | НО | 500 | НЗ | 2000 | 2...4 недели | 3919 руб. |
| N65983 | 800 | НО | 500 | НЗ | 2000 | 2...4 недели | 3919 руб. |
| N65984 | 900 | НО | 500 | НЗ | 2000 | 2...4 недели | 3919 руб. |
| N65985 | 1000 | НО | 500 | НЗ | 2000 | 2...4 недели | 3919 руб. |
| N65986 | 600 | НЗ | 500 | НЗ | 2000 | 2...4 недели | 3919 руб. |
| N65987 | 700 | НЗ | 500 | НЗ | 2000 | 2...4 недели | 3919 руб. |
| N65988 | 800 | НЗ | 500 | НЗ | 2000 | 2...4 недели | 3919 руб. |
| N65989 | 900 | НЗ | 500 | НЗ | 2000 | 2...4 недели | 3919 руб. |
| N65990 | 1000 | НЗ | 500 | НЗ | 2000 | 2...4 недели | 3919 руб. |
| N65991 | 700 | НО | 600 | НЗ | 2000 | 2...4 недели | 3919 руб. |
| N65992 | 800 | НО | 600 | НЗ | 2000 | 2...4 недели | 3919 руб. |
| N65993 | 900 | НО | 600 | НЗ | 2000 | 2...4 недели | 3919 руб. |
| N65994 | 1000 | НО | 600 | НЗ | 2000 | 2...4 недели | 3919 руб. |
| N65995 | 700 | НЗ | 600 | НЗ | 2000 | 2...4 недели | 3919 руб. |
| N65996 | 800 | НЗ | 600 | НЗ | 2000 | 2...4 недели | 3919 руб. |
| N65997 | 900 | НЗ | 600 | НЗ | 2000 | 2...4 недели | 3919 руб. |
| N65998 | 1000 | НЗ | 600 | НЗ | 2000 | 2...4 недели | 3919 руб. |
| N65999 | 800 | НО | 700 | НЗ | 2000 | 2...4 недели | 3919 руб. |
| N66000 | 900 | НО | 700 | НЗ | 2000 | 2...4 недели | 3919 руб. |
| N66001 | 1000 | НО | 700 | НЗ | 2000 | 2...4 недели | 3919 руб. |
| N66002 | 800 | НЗ | 700 | НЗ | 2000 | 2...4 недели | 3919 руб. |
| N66003 | 900 | НЗ | 700 | НЗ | 2000 | 2...4 недели | 3919 руб. |
| N66004 | 1000 | НЗ | 700 | НЗ | 2000 | 2...4 недели | 3919 руб. |
| N66005 | 900 | НО | 800 | НЗ | 2000 | 2...4 недели | 3919 руб. |
| N66006 | 1000 | НО | 800 | НЗ | 2000 | 2...4 недели | 3919 руб. |
| N66007 | 900 | НЗ | 800 | НЗ | 2000 | 2...4 недели | 3919 руб. |
| N66008 | 1000 | НЗ | 800 | НЗ | 2000 | 2...4 недели | 3919 руб. |
| N66009 | 1000 | НО | 900 | НЗ | 2000 | 2...4 недели | 3919 руб. |
| N66010 | 1000 | НЗ | 900 | НЗ | 2000 | 2...4 недели | 3919 руб. |
| N66011 | 200 | НО | 100 | НО | 3000 | 2...4 недели | 3751 руб. |
| N66012 | 300 | НО | 100 | НО | 3000 | 2...4 недели | 3751 руб. |
| N66013 | 400 | НО | 100 | НО | 3000 | 2...4 недели | 3751 руб. |
| N66014 | 500 | НО | 100 | НО | 3000 | 2...4 недели | 3751 руб. |
| N66015 | 600 | НО | 100 | НО | 3000 | 2...4 недели | 4156 руб. |
| N66016 | 700 | НО | 100 | НО | 3000 | 2...4 недели | 4156 руб. |
| N66017 | 800 | НО | 100 | НО | 3000 | 2...4 недели | 4156 руб. |
| N66018 | 900 | НО | 100 | НО | 3000 | 2...4 недели | 4156 руб. |
| N66019 | 1000 | НО | 100 | НО | 3000 | 2...4 недели | 4156 руб. |
| N66020 | 200 | НЗ | 100 | НО | 3000 | 2...4 недели | 3751 руб. |
| N66021 | 300 | НЗ | 100 | НО | 3000 | 2...4 недели | 3751 руб. |
| N66022 | 400 | НЗ | 100 | НО | 3000 | 2...4 недели | 3751 руб. |
| N66023 | 500 | НЗ | 100 | НО | 3000 | 2...4 недели | 3751 руб. |
| N66024 | 600 | НЗ | 100 | НО | 3000 | 2...4 недели | 4156 руб. |
| N66025 | 700 | НЗ | 100 | НО | 3000 | 2...4 недели | 4156 руб. |
| N66026 | 800 | НЗ | 100 | НО | 3000 | 2...4 недели | 4156 руб. |
| N66027 | 900 | НЗ | 100 | НО | 3000 | 2...4 недели | 4156 руб. |
| N66028 | 1000 | НЗ | 100 | НО | 3000 | 2...4 недели | 4156 руб. |
| N66029 | 300 | НО | 200 | НО | 3000 | 2...4 недели | 3751 руб. |
| N66030 | 400 | НО | 200 | НО | 3000 | 2...4 недели | 3751 руб. |
| N66031 | 500 | НО | 200 | НО | 3000 | 2...4 недели | 3751 руб. |
| N66032 | 600 | НО | 200 | НО | 3000 | 2...4 недели | 4156 руб. |
| N66033 | 700 | НО | 200 | НО | 3000 | 2...4 недели | 4156 руб. |
| N66034 | 800 | НО | 200 | НО | 3000 | 2...4 недели | 4156 руб. |
| N66035 | 900 | НО | 200 | НО | 3000 | 2...4 недели | 4156 руб. |
| N66036 | 1000 | НО | 200 | НО | 3000 | 2...4 недели | 4156 руб. |
| N66037 | 300 | НЗ | 200 | НО | 3000 | 2...4 недели | 3751 руб. |
| N66038 | 400 | НЗ | 200 | НО | 3000 | 2...4 недели | 3751 руб. |
| N66039 | 500 | НЗ | 200 | НО | 3000 | 2...4 недели | 3751 руб. |
| N66040 | 600 | НЗ | 200 | НО | 3000 | 2...4 недели | 4156 руб. |
| N66041 | 700 | НЗ | 200 | НО | 3000 | 2...4 недели | 4156 руб. |
| N66042 | 800 | НЗ | 200 | НО | 3000 | 2...4 недели | 4156 руб. |
| N66043 | 900 | НЗ | 200 | НО | 3000 | 2...4 недели | 4156 руб. |
| N66044 | 1000 | НЗ | 200 | НО | 3000 | 2...4 недели | 4156 руб. |
| N66045 | 400 | НО | 300 | НО | 3000 | 2...4 недели | 3751 руб. |
| N66046 | 500 | НО | 300 | НО | 3000 | 2...4 недели | 3751 руб. |
| N66047 | 600 | НО | 300 | НО | 3000 | 2...4 недели | 4156 руб. |
| N66048 | 700 | НО | 300 | НО | 3000 | 2...4 недели | 4156 руб. |
| N66049 | 800 | НО | 300 | НО | 3000 | 2...4 недели | 4156 руб. |
| N66050 | 900 | НО | 300 | НО | 3000 | 2...4 недели | 4156 руб. |
| N66051 | 1000 | НО | 300 | НО | 3000 | 2...4 недели | 4156 руб. |
| N66052 | 400 | НЗ | 300 | НО | 3000 | 2...4 недели | 3751 руб. |
| N66053 | 500 | НЗ | 300 | НО | 3000 | 2...4 недели | 3751 руб. |
| N66054 | 600 | НЗ | 300 | НО | 3000 | 2...4 недели | 4156 руб. |
| N66055 | 700 | НЗ | 300 | НО | 3000 | 2...4 недели | 4156 руб. |
| N66056 | 800 | НЗ | 300 | НО | 3000 | 2...4 недели | 4156 руб. |
| N66057 | 900 | НЗ | 300 | НО | 3000 | 2...4 недели | 4156 руб. |
| N66058 | 1000 | НЗ | 300 | НО | 3000 | 2...4 недели | 4156 руб. |
| N66059 | 500 | НО | 400 | НО | 3000 | 2...4 недели | 3751 руб. |
| N66060 | 600 | НО | 400 | НО | 3000 | 2...4 недели | 4156 руб. |
| N66061 | 700 | НО | 400 | НО | 3000 | 2...4 недели | 4156 руб. |
| N66062 | 800 | НО | 400 | НО | 3000 | 2...4 недели | 4156 руб. |
| N66063 | 900 | НО | 400 | НО | 3000 | 2...4 недели | 4156 руб. |
| N66064 | 1000 | НО | 400 | НО | 3000 | 2...4 недели | 4156 руб. |
| N66065 | 500 | НЗ | 400 | НО | 3000 | 2...4 недели | 3751 руб. |
| N66066 | 600 | НЗ | 400 | НО | 3000 | 2...4 недели | 4156 руб. |
| N66067 | 700 | НЗ | 400 | НО | 3000 | 2...4 недели | 4156 руб. |
| N66068 | 800 | НЗ | 400 | НО | 3000 | 2...4 недели | 4156 руб. |
| N66069 | 900 | НЗ | 400 | НО | 3000 | 2...4 недели | 4156 руб. |
| N66070 | 1000 | НЗ | 400 | НО | 3000 | 2...4 недели | 4156 руб. |
| N66071 | 600 | НО | 500 | НО | 3000 | 2...4 недели | 4156 руб. |
| N66072 | 700 | НО | 500 | НО | 3000 | 2...4 недели | 4156 руб. |
| N66073 | 800 | НО | 500 | НО | 3000 | 2...4 недели | 4156 руб. |
| N66074 | 900 | НО | 500 | НО | 3000 | 2...4 недели | 4156 руб. |
| N66075 | 1000 | НО | 500 | НО | 3000 | 2...4 недели | 4156 руб. |
| N66076 | 600 | НЗ | 500 | НО | 3000 | 2...4 недели | 4156 руб. |
| N66077 | 700 | НЗ | 500 | НО | 3000 | 2...4 недели | 4156 руб. |
| N66078 | 800 | НЗ | 500 | НО | 3000 | 2...4 недели | 4156 руб. |
| N66079 | 900 | НЗ | 500 | НО | 3000 | 2...4 недели | 4156 руб. |
| N66080 | 1000 | НЗ | 500 | НО | 3000 | 2...4 недели | 4156 руб. |
| N66081 | 700 | НО | 600 | НО | 3000 | 2...4 недели | 4156 руб. |
| N66082 | 800 | НО | 600 | НО | 3000 | 2...4 недели | 4156 руб. |
| N66083 | 900 | НО | 600 | НО | 3000 | 2...4 недели | 4156 руб. |
| N66084 | 1000 | НО | 600 | НО | 3000 | 2...4 недели | 4156 руб. |
| N66085 | 700 | НЗ | 600 | НО | 3000 | 2...4 недели | 4156 руб. |
| N66086 | 800 | НЗ | 600 | НО | 3000 | 2...4 недели | 4156 руб. |
| N66087 | 900 | НЗ | 600 | НО | 3000 | 2...4 недели | 4156 руб. |
| N66088 | 1000 | НЗ | 600 | НО | 3000 | 2...4 недели | 4156 руб. |
| N66089 | 800 | НО | 700 | НО | 3000 | 2...4 недели | 4156 руб. |
| N66090 | 900 | НО | 700 | НО | 3000 | 2...4 недели | 4156 руб. |
| N66091 | 1000 | НО | 700 | НО | 3000 | 2...4 недели | 4156 руб. |
| N66092 | 800 | НЗ | 700 | НО | 3000 | 2...4 недели | 4156 руб. |
| N66093 | 900 | НЗ | 700 | НО | 3000 | 2...4 недели | 4156 руб. |
| N66094 | 1000 | НЗ | 700 | НО | 3000 | 2...4 недели | 4156 руб. |
| N66095 | 900 | НО | 800 | НО | 3000 | 2...4 недели | 4156 руб. |
| N66096 | 1000 | НО | 800 | НО | 3000 | 2...4 недели | 4156 руб. |
| N66097 | 900 | НЗ | 800 | НО | 3000 | 2...4 недели | 4156 руб. |
| N66098 | 1000 | НЗ | 800 | НО | 3000 | 2...4 недели | 4156 руб. |
| N66099 | 1000 | НО | 900 | НО | 3000 | 2...4 недели | 4156 руб. |
| N66100 | 1000 | НЗ | 900 | НО | 3000 | 2...4 недели | 4156 руб. |
| N66101 | 200 | НО | 100 | НЗ | 3000 | 2...4 недели | 3751 руб. |
| N66102 | 300 | НО | 100 | НЗ | 3000 | 2...4 недели | 3751 руб. |
| N66103 | 400 | НО | 100 | НЗ | 3000 | 2...4 недели | 3751 руб. |
| N66104 | 500 | НО | 100 | НЗ | 3000 | 2...4 недели | 3751 руб. |
| N66105 | 600 | НО | 100 | НЗ | 3000 | 2...4 недели | 4156 руб. |
| N66106 | 700 | НО | 100 | НЗ | 3000 | 2...4 недели | 4156 руб. |
| N66107 | 800 | НО | 100 | НЗ | 3000 | 2...4 недели | 4156 руб. |
| N66108 | 900 | НО | 100 | НЗ | 3000 | 2...4 недели | 4156 руб. |
| N66109 | 1000 | НО | 100 | НЗ | 3000 | 2...4 недели | 4156 руб. |
| N66110 | 200 | НЗ | 100 | НЗ | 3000 | 2...4 недели | 3751 руб. |
| N66111 | 300 | НЗ | 100 | НЗ | 3000 | 2...4 недели | 3751 руб. |
| N66112 | 400 | НЗ | 100 | НЗ | 3000 | 2...4 недели | 3751 руб. |
| N66113 | 500 | НЗ | 100 | НЗ | 3000 | 2...4 недели | 3751 руб. |
| N66114 | 600 | НЗ | 100 | НЗ | 3000 | 2...4 недели | 4156 руб. |
| N66115 | 700 | НЗ | 100 | НЗ | 3000 | 2...4 недели | 4156 руб. |
| N66116 | 800 | НЗ | 100 | НЗ | 3000 | 2...4 недели | 4156 руб. |
| N66117 | 900 | НЗ | 100 | НЗ | 3000 | 2...4 недели | 4156 руб. |
| N66118 | 1000 | НЗ | 100 | НЗ | 3000 | 2...4 недели | 4156 руб. |
| N66119 | 300 | НО | 200 | НЗ | 3000 | 2...4 недели | 3751 руб. |
| N66120 | 400 | НО | 200 | НЗ | 3000 | 2...4 недели | 3751 руб. |
| N66121 | 500 | НО | 200 | НЗ | 3000 | 2...4 недели | 3751 руб. |
| N66122 | 600 | НО | 200 | НЗ | 3000 | 2...4 недели | 4156 руб. |
| N66123 | 700 | НО | 200 | НЗ | 3000 | 2...4 недели | 4156 руб. |
| N66124 | 800 | НО | 200 | НЗ | 3000 | 2...4 недели | 4156 руб. |
| N66125 | 900 | НО | 200 | НЗ | 3000 | 2...4 недели | 4156 руб. |
| N66126 | 1000 | НО | 200 | НЗ | 3000 | 2...4 недели | 4156 руб. |
| N66127 | 300 | НЗ | 200 | НЗ | 3000 | 2...4 недели | 3751 руб. |
| N66128 | 400 | НЗ | 200 | НЗ | 3000 | 2...4 недели | 3751 руб. |
| N66129 | 500 | НЗ | 200 | НЗ | 3000 | 2...4 недели | 3751 руб. |
| N66130 | 600 | НЗ | 200 | НЗ | 3000 | 2...4 недели | 4156 руб. |
| N66131 | 700 | НЗ | 200 | НЗ | 3000 | 2...4 недели | 4156 руб. |
| N66132 | 800 | НЗ | 200 | НЗ | 3000 | 2...4 недели | 4156 руб. |
| N66133 | 900 | НЗ | 200 | НЗ | 3000 | 2...4 недели | 4156 руб. |
| N66134 | 1000 | НЗ | 200 | НЗ | 3000 | 2...4 недели | 4156 руб. |
| N66135 | 400 | НО | 300 | НЗ | 3000 | 2...4 недели | 3751 руб. |
| N66136 | 500 | НО | 300 | НЗ | 3000 | 2...4 недели | 3751 руб. |
| N66137 | 600 | НО | 300 | НЗ | 3000 | 2...4 недели | 4156 руб. |
| N66138 | 700 | НО | 300 | НЗ | 3000 | 2...4 недели | 4156 руб. |
| N66139 | 800 | НО | 300 | НЗ | 3000 | 2...4 недели | 4156 руб. |
| N66140 | 900 | НО | 300 | НЗ | 3000 | 2...4 недели | 4156 руб. |
| N66141 | 1000 | НО | 300 | НЗ | 3000 | 2...4 недели | 4156 руб. |
| N66142 | 400 | НЗ | 300 | НЗ | 3000 | 2...4 недели | 3751 руб. |
| N66143 | 500 | НЗ | 300 | НЗ | 3000 | 2...4 недели | 3751 руб. |
| N66144 | 600 | НЗ | 300 | НЗ | 3000 | 2...4 недели | 4156 руб. |
| N66145 | 700 | НЗ | 300 | НЗ | 3000 | 2...4 недели | 4156 руб. |
| N66146 | 800 | НЗ | 300 | НЗ | 3000 | 2...4 недели | 4156 руб. |
| N66147 | 900 | НЗ | 300 | НЗ | 3000 | 2...4 недели | 4156 руб. |
| N66148 | 1000 | НЗ | 300 | НЗ | 3000 | 2...4 недели | 4156 руб. |
| N66149 | 500 | НО | 400 | НЗ | 3000 | 2...4 недели | 3751 руб. |
| N66150 | 600 | НО | 400 | НЗ | 3000 | 2...4 недели | 4156 руб. |
| N66151 | 700 | НО | 400 | НЗ | 3000 | 2...4 недели | 4156 руб. |
| N66152 | 800 | НО | 400 | НЗ | 3000 | 2...4 недели | 4156 руб. |
| N66153 | 900 | НО | 400 | НЗ | 3000 | 2...4 недели | 4156 руб. |
| N66154 | 1000 | НО | 400 | НЗ | 3000 | 2...4 недели | 4156 руб. |
| N66155 | 500 | НЗ | 400 | НЗ | 3000 | 2...4 недели | 3751 руб. |
| N66156 | 600 | НЗ | 400 | НЗ | 3000 | 2...4 недели | 4156 руб. |
| N66157 | 700 | НЗ | 400 | НЗ | 3000 | 2...4 недели | 4156 руб. |
| N66158 | 800 | НЗ | 400 | НЗ | 3000 | 2...4 недели | 4156 руб. |
| N66159 | 900 | НЗ | 400 | НЗ | 3000 | 2...4 недели | 4156 руб. |
| N66160 | 1000 | НЗ | 400 | НЗ | 3000 | 2...4 недели | 4156 руб. |
| N66161 | 600 | НО | 500 | НЗ | 3000 | 2...4 недели | 4156 руб. |
| N66162 | 700 | НО | 500 | НЗ | 3000 | 2...4 недели | 4156 руб. |
| N66163 | 800 | НО | 500 | НЗ | 3000 | 2...4 недели | 4156 руб. |
| N66164 | 900 | НО | 500 | НЗ | 3000 | 2...4 недели | 4156 руб. |
| N66165 | 1000 | НО | 500 | НЗ | 3000 | 2...4 недели | 4156 руб. |
| N66166 | 600 | НЗ | 500 | НЗ | 3000 | 2...4 недели | 4156 руб. |
| N66167 | 700 | НЗ | 500 | НЗ | 3000 | 2...4 недели | 4156 руб. |
| N66168 | 800 | НЗ | 500 | НЗ | 3000 | 2...4 недели | 4156 руб. |
| N66169 | 900 | НЗ | 500 | НЗ | 3000 | 2...4 недели | 4156 руб. |
| N66170 | 1000 | НЗ | 500 | НЗ | 3000 | 2...4 недели | 4156 руб. |
| N66171 | 700 | НО | 600 | НЗ | 3000 | 2...4 недели | 4156 руб. |
| N66172 | 800 | НО | 600 | НЗ | 3000 | 2...4 недели | 4156 руб. |
| N66173 | 900 | НО | 600 | НЗ | 3000 | 2...4 недели | 4156 руб. |
| N66174 | 1000 | НО | 600 | НЗ | 3000 | 2...4 недели | 4156 руб. |
| N66175 | 700 | НЗ | 600 | НЗ | 3000 | 2...4 недели | 4156 руб. |
| N66176 | 800 | НЗ | 600 | НЗ | 3000 | 2...4 недели | 4156 руб. |
| N66177 | 900 | НЗ | 600 | НЗ | 3000 | 2...4 недели | 4156 руб. |
| N66178 | 1000 | НЗ | 600 | НЗ | 3000 | 2...4 недели | 4156 руб. |
| N66179 | 800 | НО | 700 | НЗ | 3000 | 2...4 недели | 4156 руб. |
| N66180 | 900 | НО | 700 | НЗ | 3000 | 2...4 недели | 4156 руб. |
| N66181 | 1000 | НО | 700 | НЗ | 3000 | 2...4 недели | 4156 руб. |
| N66182 | 800 | НЗ | 700 | НЗ | 3000 | 2...4 недели | 4156 руб. |
| N66183 | 900 | НЗ | 700 | НЗ | 3000 | 2...4 недели | 4156 руб. |
| N66184 | 1000 | НЗ | 700 | НЗ | 3000 | 2...4 недели | 4156 руб. |
| N66185 | 900 | НО | 800 | НЗ | 3000 | 2...4 недели | 4156 руб. |
| N66186 | 1000 | НО | 800 | НЗ | 3000 | 2...4 недели | 4156 руб. |
| N66187 | 900 | НЗ | 800 | НЗ | 3000 | 2...4 недели | 4156 руб. |
| N66188 | 1000 | НЗ | 800 | НЗ | 3000 | 2...4 недели | 4156 руб. |
| N66189 | 1000 | НО | 900 | НЗ | 3000 | 2...4 недели | 4156 руб. |
| N66190 | 1000 | НЗ | 900 | НЗ | 3000 | 2...4 недели | 4156 руб. |
| N66191 | 200 | НО | 100 | НО | 4000 | 2...4 недели | 3988 руб. |
| N66192 | 300 | НО | 100 | НО | 4000 | 2...4 недели | 3988 руб. |
| N66193 | 400 | НО | 100 | НО | 4000 | 2...4 недели | 3988 руб. |
| N66194 | 500 | НО | 100 | НО | 4000 | 2...4 недели | 3988 руб. |
| N66195 | 600 | НО | 100 | НО | 4000 | 2...4 недели | 4393 руб. |
| N66196 | 700 | НО | 100 | НО | 4000 | 2...4 недели | 4393 руб. |
| N66197 | 800 | НО | 100 | НО | 4000 | 2...4 недели | 4393 руб. |
| N66198 | 900 | НО | 100 | НО | 4000 | 2...4 недели | 4393 руб. |
| N66199 | 1000 | НО | 100 | НО | 4000 | 2...4 недели | 4393 руб. |
| N66200 | 200 | НЗ | 100 | НО | 4000 | 2...4 недели | 3988 руб. |
| N66201 | 300 | НЗ | 100 | НО | 4000 | 2...4 недели | 3988 руб. |
| N66202 | 400 | НЗ | 100 | НО | 4000 | 2...4 недели | 3988 руб. |
| N66203 | 500 | НЗ | 100 | НО | 4000 | 2...4 недели | 3988 руб. |
| N66204 | 600 | НЗ | 100 | НО | 4000 | 2...4 недели | 4393 руб. |
| N66205 | 700 | НЗ | 100 | НО | 4000 | 2...4 недели | 4393 руб. |
| N66206 | 800 | НЗ | 100 | НО | 4000 | 2...4 недели | 4393 руб. |
| N66207 | 900 | НЗ | 100 | НО | 4000 | 2...4 недели | 4393 руб. |
| N66208 | 1000 | НЗ | 100 | НО | 4000 | 2...4 недели | 4393 руб. |
| N66209 | 300 | НО | 200 | НО | 4000 | 2...4 недели | 3988 руб. |
| N66210 | 400 | НО | 200 | НО | 4000 | 2...4 недели | 3988 руб. |
| N66211 | 500 | НО | 200 | НО | 4000 | 2...4 недели | 3988 руб. |
| N66212 | 600 | НО | 200 | НО | 4000 | 2...4 недели | 4393 руб. |
| N66213 | 700 | НО | 200 | НО | 4000 | 2...4 недели | 4393 руб. |
| N66214 | 800 | НО | 200 | НО | 4000 | 2...4 недели | 4393 руб. |
| N66215 | 900 | НО | 200 | НО | 4000 | 2...4 недели | 4393 руб. |
| N66216 | 1000 | НО | 200 | НО | 4000 | 2...4 недели | 4393 руб. |
| N66217 | 300 | НЗ | 200 | НО | 4000 | 2...4 недели | 3988 руб. |
| N66218 | 400 | НЗ | 200 | НО | 4000 | 2...4 недели | 3988 руб. |
| N66219 | 500 | НЗ | 200 | НО | 4000 | 2...4 недели | 3988 руб. |
| N66220 | 600 | НЗ | 200 | НО | 4000 | 2...4 недели | 4393 руб. |
| N66221 | 700 | НЗ | 200 | НО | 4000 | 2...4 недели | 4393 руб. |
| N66222 | 800 | НЗ | 200 | НО | 4000 | 2...4 недели | 4393 руб. |
| N66223 | 900 | НЗ | 200 | НО | 4000 | 2...4 недели | 4393 руб. |
| N66224 | 1000 | НЗ | 200 | НО | 4000 | 2...4 недели | 4393 руб. |
| N66225 | 400 | НО | 300 | НО | 4000 | 2...4 недели | 3988 руб. |
| N66226 | 500 | НО | 300 | НО | 4000 | 2...4 недели | 3988 руб. |
| N66227 | 600 | НО | 300 | НО | 4000 | 2...4 недели | 4393 руб. |
| N66228 | 700 | НО | 300 | НО | 4000 | 2...4 недели | 4393 руб. |
| N66229 | 800 | НО | 300 | НО | 4000 | 2...4 недели | 4393 руб. |
| N66230 | 900 | НО | 300 | НО | 4000 | 2...4 недели | 4393 руб. |
| N66231 | 1000 | НО | 300 | НО | 4000 | 2...4 недели | 4393 руб. |
| N66232 | 400 | НЗ | 300 | НО | 4000 | 2...4 недели | 3988 руб. |
| N66233 | 500 | НЗ | 300 | НО | 4000 | 2...4 недели | 3988 руб. |
| N66234 | 600 | НЗ | 300 | НО | 4000 | 2...4 недели | 4393 руб. |
| N66235 | 700 | НЗ | 300 | НО | 4000 | 2...4 недели | 4393 руб. |
| N66236 | 800 | НЗ | 300 | НО | 4000 | 2...4 недели | 4393 руб. |
| N66237 | 900 | НЗ | 300 | НО | 4000 | 2...4 недели | 4393 руб. |
| N66238 | 1000 | НЗ | 300 | НО | 4000 | 2...4 недели | 4393 руб. |
| N66239 | 500 | НО | 400 | НО | 4000 | 2...4 недели | 3988 руб. |
| N66240 | 600 | НО | 400 | НО | 4000 | 2...4 недели | 4393 руб. |
| N66241 | 700 | НО | 400 | НО | 4000 | 2...4 недели | 4393 руб. |
| N66242 | 800 | НО | 400 | НО | 4000 | 2...4 недели | 4393 руб. |
| N66243 | 900 | НО | 400 | НО | 4000 | 2...4 недели | 4393 руб. |
| N66244 | 1000 | НО | 400 | НО | 4000 | 2...4 недели | 4393 руб. |
| N66245 | 500 | НЗ | 400 | НО | 4000 | 2...4 недели | 3988 руб. |
| N66246 | 600 | НЗ | 400 | НО | 4000 | 2...4 недели | 4393 руб. |
| N66247 | 700 | НЗ | 400 | НО | 4000 | 2...4 недели | 4393 руб. |
| N66248 | 800 | НЗ | 400 | НО | 4000 | 2...4 недели | 4393 руб. |
| N66249 | 900 | НЗ | 400 | НО | 4000 | 2...4 недели | 4393 руб. |
| N66250 | 1000 | НЗ | 400 | НО | 4000 | 2...4 недели | 4393 руб. |
| N66251 | 600 | НО | 500 | НО | 4000 | 2...4 недели | 4393 руб. |
| N66252 | 700 | НО | 500 | НО | 4000 | 2...4 недели | 4393 руб. |
| N66253 | 800 | НО | 500 | НО | 4000 | 2...4 недели | 4393 руб. |
| N66254 | 900 | НО | 500 | НО | 4000 | 2...4 недели | 4393 руб. |
| N66255 | 1000 | НО | 500 | НО | 4000 | 2...4 недели | 4393 руб. |
| N66256 | 600 | НЗ | 500 | НО | 4000 | 2...4 недели | 4393 руб. |
| N66257 | 700 | НЗ | 500 | НО | 4000 | 2...4 недели | 4393 руб. |
| N66258 | 800 | НЗ | 500 | НО | 4000 | 2...4 недели | 4393 руб. |
| N66259 | 900 | НЗ | 500 | НО | 4000 | 2...4 недели | 4393 руб. |
| N66260 | 1000 | НЗ | 500 | НО | 4000 | 2...4 недели | 4393 руб. |
| N66261 | 700 | НО | 600 | НО | 4000 | 2...4 недели | 4393 руб. |
| N66262 | 800 | НО | 600 | НО | 4000 | 2...4 недели | 4393 руб. |
| N66263 | 900 | НО | 600 | НО | 4000 | 2...4 недели | 4393 руб. |
| N66264 | 1000 | НО | 600 | НО | 4000 | 2...4 недели | 4393 руб. |
| N66265 | 700 | НЗ | 600 | НО | 4000 | 2...4 недели | 4393 руб. |
| N66266 | 800 | НЗ | 600 | НО | 4000 | 2...4 недели | 4393 руб. |
| N66267 | 900 | НЗ | 600 | НО | 4000 | 2...4 недели | 4393 руб. |
| N66268 | 1000 | НЗ | 600 | НО | 4000 | 2...4 недели | 4393 руб. |
| N66269 | 800 | НО | 700 | НО | 4000 | 2...4 недели | 4393 руб. |
| N66270 | 900 | НО | 700 | НО | 4000 | 2...4 недели | 4393 руб. |
| N66271 | 1000 | НО | 700 | НО | 4000 | 2...4 недели | 4393 руб. |
| N66272 | 800 | НЗ | 700 | НО | 4000 | 2...4 недели | 4393 руб. |
| N66273 | 900 | НЗ | 700 | НО | 4000 | 2...4 недели | 4393 руб. |
| N66274 | 1000 | НЗ | 700 | НО | 4000 | 2...4 недели | 4393 руб. |
| N66275 | 900 | НО | 800 | НО | 4000 | 2...4 недели | 4393 руб. |
| N66276 | 1000 | НО | 800 | НО | 4000 | 2...4 недели | 4393 руб. |
| N66277 | 900 | НЗ | 800 | НО | 4000 | 2...4 недели | 4393 руб. |
| N66278 | 1000 | НЗ | 800 | НО | 4000 | 2...4 недели | 4393 руб. |
| N66279 | 1000 | НО | 900 | НО | 4000 | 2...4 недели | 4393 руб. |
| N66280 | 1000 | НЗ | 900 | НО | 4000 | 2...4 недели | 4393 руб. |
| N66281 | 200 | НО | 100 | НЗ | 4000 | 2...4 недели | 3988 руб. |
| N66282 | 300 | НО | 100 | НЗ | 4000 | 2...4 недели | 3988 руб. |
| N66283 | 400 | НО | 100 | НЗ | 4000 | 2...4 недели | 3988 руб. |
| N66284 | 500 | НО | 100 | НЗ | 4000 | 2...4 недели | 3988 руб. |
| N66285 | 600 | НО | 100 | НЗ | 4000 | 2...4 недели | 4393 руб. |
| N66286 | 700 | НО | 100 | НЗ | 4000 | 2...4 недели | 4393 руб. |
| N66287 | 800 | НО | 100 | НЗ | 4000 | 2...4 недели | 4393 руб. |
| N66288 | 900 | НО | 100 | НЗ | 4000 | 2...4 недели | 4393 руб. |
| N66289 | 1000 | НО | 100 | НЗ | 4000 | 2...4 недели | 4393 руб. |
| N66290 | 200 | НЗ | 100 | НЗ | 4000 | 2...4 недели | 3988 руб. |
| N66291 | 300 | НЗ | 100 | НЗ | 4000 | 2...4 недели | 3988 руб. |
| N66292 | 400 | НЗ | 100 | НЗ | 4000 | 2...4 недели | 3988 руб. |
| N66293 | 500 | НЗ | 100 | НЗ | 4000 | 2...4 недели | 3988 руб. |
| N66294 | 600 | НЗ | 100 | НЗ | 4000 | 2...4 недели | 4393 руб. |
| N66295 | 700 | НЗ | 100 | НЗ | 4000 | 2...4 недели | 4393 руб. |
| N66296 | 800 | НЗ | 100 | НЗ | 4000 | 2...4 недели | 4393 руб. |
| N66297 | 900 | НЗ | 100 | НЗ | 4000 | 2...4 недели | 4393 руб. |
| N66298 | 1000 | НЗ | 100 | НЗ | 4000 | 2...4 недели | 4393 руб. |
| N66299 | 300 | НО | 200 | НЗ | 4000 | 2...4 недели | 3988 руб. |
| N66300 | 400 | НО | 200 | НЗ | 4000 | 2...4 недели | 3988 руб. |
| N66301 | 500 | НО | 200 | НЗ | 4000 | 2...4 недели | 3988 руб. |
| N66302 | 600 | НО | 200 | НЗ | 4000 | 2...4 недели | 4393 руб. |
| N66303 | 700 | НО | 200 | НЗ | 4000 | 2...4 недели | 4393 руб. |
| N66304 | 800 | НО | 200 | НЗ | 4000 | 2...4 недели | 4393 руб. |
| N66305 | 900 | НО | 200 | НЗ | 4000 | 2...4 недели | 4393 руб. |
| N66306 | 1000 | НО | 200 | НЗ | 4000 | 2...4 недели | 4393 руб. |
| N66307 | 300 | НЗ | 200 | НЗ | 4000 | 2...4 недели | 3988 руб. |
| N66308 | 400 | НЗ | 200 | НЗ | 4000 | 2...4 недели | 3988 руб. |
| N66309 | 500 | НЗ | 200 | НЗ | 4000 | 2...4 недели | 3988 руб. |
| N66310 | 600 | НЗ | 200 | НЗ | 4000 | 2...4 недели | 4393 руб. |
| N66311 | 700 | НЗ | 200 | НЗ | 4000 | 2...4 недели | 4393 руб. |
| N66312 | 800 | НЗ | 200 | НЗ | 4000 | 2...4 недели | 4393 руб. |
| N66313 | 900 | НЗ | 200 | НЗ | 4000 | 2...4 недели | 4393 руб. |
| N66314 | 1000 | НЗ | 200 | НЗ | 4000 | 2...4 недели | 4393 руб. |
| N66315 | 400 | НО | 300 | НЗ | 4000 | 2...4 недели | 3988 руб. |
| N66316 | 500 | НО | 300 | НЗ | 4000 | 2...4 недели | 3988 руб. |
| N66317 | 600 | НО | 300 | НЗ | 4000 | 2...4 недели | 4393 руб. |
| N66318 | 700 | НО | 300 | НЗ | 4000 | 2...4 недели | 4393 руб. |
| N66319 | 800 | НО | 300 | НЗ | 4000 | 2...4 недели | 4393 руб. |
| N66320 | 900 | НО | 300 | НЗ | 4000 | 2...4 недели | 4393 руб. |
| N66321 | 1000 | НО | 300 | НЗ | 4000 | 2...4 недели | 4393 руб. |
| N66322 | 400 | НЗ | 300 | НЗ | 4000 | 2...4 недели | 3988 руб. |
| N66323 | 500 | НЗ | 300 | НЗ | 4000 | 2...4 недели | 3988 руб. |
| N66324 | 600 | НЗ | 300 | НЗ | 4000 | 2...4 недели | 4393 руб. |
| N66325 | 700 | НЗ | 300 | НЗ | 4000 | 2...4 недели | 4393 руб. |
| N66326 | 800 | НЗ | 300 | НЗ | 4000 | 2...4 недели | 4393 руб. |
| N66327 | 900 | НЗ | 300 | НЗ | 4000 | 2...4 недели | 4393 руб. |
| N66328 | 1000 | НЗ | 300 | НЗ | 4000 | 2...4 недели | 4393 руб. |
| N66329 | 500 | НО | 400 | НЗ | 4000 | 2...4 недели | 3988 руб. |
| N66330 | 600 | НО | 400 | НЗ | 4000 | 2...4 недели | 4393 руб. |
| N66331 | 700 | НО | 400 | НЗ | 4000 | 2...4 недели | 4393 руб. |
| N66332 | 800 | НО | 400 | НЗ | 4000 | 2...4 недели | 4393 руб. |
| N66333 | 900 | НО | 400 | НЗ | 4000 | 2...4 недели | 4393 руб. |
| N66334 | 1000 | НО | 400 | НЗ | 4000 | 2...4 недели | 4393 руб. |
| N66335 | 500 | НЗ | 400 | НЗ | 4000 | 2...4 недели | 3988 руб. |
| N66336 | 600 | НЗ | 400 | НЗ | 4000 | 2...4 недели | 4393 руб. |
| N66337 | 700 | НЗ | 400 | НЗ | 4000 | 2...4 недели | 4393 руб. |
| N66338 | 800 | НЗ | 400 | НЗ | 4000 | 2...4 недели | 4393 руб. |
| N66339 | 900 | НЗ | 400 | НЗ | 4000 | 2...4 недели | 4393 руб. |
| N66340 | 1000 | НЗ | 400 | НЗ | 4000 | 2...4 недели | 4393 руб. |
| N66341 | 600 | НО | 500 | НЗ | 4000 | 2...4 недели | 4393 руб. |
| N66342 | 700 | НО | 500 | НЗ | 4000 | 2...4 недели | 4393 руб. |
| N66343 | 800 | НО | 500 | НЗ | 4000 | 2...4 недели | 4393 руб. |
| N66344 | 900 | НО | 500 | НЗ | 4000 | 2...4 недели | 4393 руб. |
| N66345 | 1000 | НО | 500 | НЗ | 4000 | 2...4 недели | 4393 руб. |
| N66346 | 600 | НЗ | 500 | НЗ | 4000 | 2...4 недели | 4393 руб. |
| N66347 | 700 | НЗ | 500 | НЗ | 4000 | 2...4 недели | 4393 руб. |
| N66348 | 800 | НЗ | 500 | НЗ | 4000 | 2...4 недели | 4393 руб. |
| N66349 | 900 | НЗ | 500 | НЗ | 4000 | 2...4 недели | 4393 руб. |
| N66350 | 1000 | НЗ | 500 | НЗ | 4000 | 2...4 недели | 4393 руб. |
| N66351 | 700 | НО | 600 | НЗ | 4000 | 2...4 недели | 4393 руб. |
| N66352 | 800 | НО | 600 | НЗ | 4000 | 2...4 недели | 4393 руб. |
| N66353 | 900 | НО | 600 | НЗ | 4000 | 2...4 недели | 4393 руб. |
| N66354 | 1000 | НО | 600 | НЗ | 4000 | 2...4 недели | 4393 руб. |
| N66355 | 700 | НЗ | 600 | НЗ | 4000 | 2...4 недели | 4393 руб. |
| N66356 | 800 | НЗ | 600 | НЗ | 4000 | 2...4 недели | 4393 руб. |
| N66357 | 900 | НЗ | 600 | НЗ | 4000 | 2...4 недели | 4393 руб. |
| N66358 | 1000 | НЗ | 600 | НЗ | 4000 | 2...4 недели | 4393 руб. |
| N66359 | 800 | НО | 700 | НЗ | 4000 | 2...4 недели | 4393 руб. |
| N66360 | 900 | НО | 700 | НЗ | 4000 | 2...4 недели | 4393 руб. |
| N66361 | 1000 | НО | 700 | НЗ | 4000 | 2...4 недели | 4393 руб. |
| N66362 | 800 | НЗ | 700 | НЗ | 4000 | 2...4 недели | 4393 руб. |
| N66363 | 900 | НЗ | 700 | НЗ | 4000 | 2...4 недели | 4393 руб. |
| N66364 | 1000 | НЗ | 700 | НЗ | 4000 | 2...4 недели | 4393 руб. |
| N66365 | 900 | НО | 800 | НЗ | 4000 | 2...4 недели | 4393 руб. |
| N66366 | 1000 | НО | 800 | НЗ | 4000 | 2...4 недели | 4393 руб. |
| N66367 | 900 | НЗ | 800 | НЗ | 4000 | 2...4 недели | 4393 руб. |
| N66368 | 1000 | НЗ | 800 | НЗ | 4000 | 2...4 недели | 4393 руб. |
| N66369 | 1000 | НО | 900 | НЗ | 4000 | 2...4 недели | 4393 руб. |
| N66370 | 1000 | НЗ | 900 | НЗ | 4000 | 2...4 недели | 4393 руб. |
| N66371 | 200 | НО | 100 | НО | 5000 | 2...4 недели | 4225 руб. |
| N66372 | 300 | НО | 100 | НО | 5000 | 2...4 недели | 4225 руб. |
| N66373 | 400 | НО | 100 | НО | 5000 | 2...4 недели | 4225 руб. |
| N66374 | 500 | НО | 100 | НО | 5000 | 2...4 недели | 4225 руб. |
| N66375 | 600 | НО | 100 | НО | 5000 | 2...4 недели | 4630 руб. |
| N66376 | 700 | НО | 100 | НО | 5000 | 2...4 недели | 4630 руб. |
| N66377 | 800 | НО | 100 | НО | 5000 | 2...4 недели | 4630 руб. |
| N66378 | 900 | НО | 100 | НО | 5000 | 2...4 недели | 4630 руб. |
| N66379 | 1000 | НО | 100 | НО | 5000 | 2...4 недели | 4630 руб. |
| N66380 | 200 | НЗ | 100 | НО | 5000 | 2...4 недели | 4225 руб. |
| N66381 | 300 | НЗ | 100 | НО | 5000 | 2...4 недели | 4225 руб. |
| N66382 | 400 | НЗ | 100 | НО | 5000 | 2...4 недели | 4225 руб. |
| N66383 | 500 | НЗ | 100 | НО | 5000 | 2...4 недели | 4225 руб. |
| N66384 | 600 | НЗ | 100 | НО | 5000 | 2...4 недели | 4630 руб. |
| N66385 | 700 | НЗ | 100 | НО | 5000 | 2...4 недели | 4630 руб. |
| N66386 | 800 | НЗ | 100 | НО | 5000 | 2...4 недели | 4630 руб. |
| N66387 | 900 | НЗ | 100 | НО | 5000 | 2...4 недели | 4630 руб. |
| N66388 | 1000 | НЗ | 100 | НО | 5000 | 2...4 недели | 4630 руб. |
| N66389 | 300 | НО | 200 | НО | 5000 | 2...4 недели | 4225 руб. |
| N66390 | 400 | НО | 200 | НО | 5000 | 2...4 недели | 4225 руб. |
| N66391 | 500 | НО | 200 | НО | 5000 | 2...4 недели | 4225 руб. |
| N66392 | 600 | НО | 200 | НО | 5000 | 2...4 недели | 4630 руб. |
| N66393 | 700 | НО | 200 | НО | 5000 | 2...4 недели | 4630 руб. |
| N66394 | 800 | НО | 200 | НО | 5000 | 2...4 недели | 4630 руб. |
| N66395 | 900 | НО | 200 | НО | 5000 | 2...4 недели | 4630 руб. |
| N66396 | 1000 | НО | 200 | НО | 5000 | 2...4 недели | 4630 руб. |
| N66397 | 300 | НЗ | 200 | НО | 5000 | 2...4 недели | 4225 руб. |
| N66398 | 400 | НЗ | 200 | НО | 5000 | 2...4 недели | 4225 руб. |
| N66399 | 500 | НЗ | 200 | НО | 5000 | 2...4 недели | 4225 руб. |
| N66400 | 600 | НЗ | 200 | НО | 5000 | 2...4 недели | 4630 руб. |
| N66401 | 700 | НЗ | 200 | НО | 5000 | 2...4 недели | 4630 руб. |
| N66402 | 800 | НЗ | 200 | НО | 5000 | 2...4 недели | 4630 руб. |
| N66403 | 900 | НЗ | 200 | НО | 5000 | 2...4 недели | 4630 руб. |
| N66404 | 1000 | НЗ | 200 | НО | 5000 | 2...4 недели | 4630 руб. |
| N66405 | 400 | НО | 300 | НО | 5000 | 2...4 недели | 4225 руб. |
| N66406 | 500 | НО | 300 | НО | 5000 | 2...4 недели | 4225 руб. |
| N66407 | 600 | НО | 300 | НО | 5000 | 2...4 недели | 4630 руб. |
| N66408 | 700 | НО | 300 | НО | 5000 | 2...4 недели | 4630 руб. |
| N66409 | 800 | НО | 300 | НО | 5000 | 2...4 недели | 4630 руб. |
| N66410 | 900 | НО | 300 | НО | 5000 | 2...4 недели | 4630 руб. |
| N66411 | 1000 | НО | 300 | НО | 5000 | 2...4 недели | 4630 руб. |
| N66412 | 400 | НЗ | 300 | НО | 5000 | 2...4 недели | 4225 руб. |
| N66413 | 500 | НЗ | 300 | НО | 5000 | 2...4 недели | 4225 руб. |
| N66414 | 600 | НЗ | 300 | НО | 5000 | 2...4 недели | 4630 руб. |
| N66415 | 700 | НЗ | 300 | НО | 5000 | 2...4 недели | 4630 руб. |
| N66416 | 800 | НЗ | 300 | НО | 5000 | 2...4 недели | 4630 руб. |
| N66417 | 900 | НЗ | 300 | НО | 5000 | 2...4 недели | 4630 руб. |
| N66418 | 1000 | НЗ | 300 | НО | 5000 | 2...4 недели | 4630 руб. |
| N66419 | 500 | НО | 400 | НО | 5000 | 2...4 недели | 4225 руб. |
| N66420 | 600 | НО | 400 | НО | 5000 | 2...4 недели | 4630 руб. |
| N66421 | 700 | НО | 400 | НО | 5000 | 2...4 недели | 4630 руб. |
| N66422 | 800 | НО | 400 | НО | 5000 | 2...4 недели | 4630 руб. |
| N66423 | 900 | НО | 400 | НО | 5000 | 2...4 недели | 4630 руб. |
| N66424 | 1000 | НО | 400 | НО | 5000 | 2...4 недели | 4630 руб. |
| N66425 | 500 | НЗ | 400 | НО | 5000 | 2...4 недели | 4225 руб. |
| N66426 | 600 | НЗ | 400 | НО | 5000 | 2...4 недели | 4630 руб. |
| N66427 | 700 | НЗ | 400 | НО | 5000 | 2...4 недели | 4630 руб. |
| N66428 | 800 | НЗ | 400 | НО | 5000 | 2...4 недели | 4630 руб. |
| N66429 | 900 | НЗ | 400 | НО | 5000 | 2...4 недели | 4630 руб. |
| N66430 | 1000 | НЗ | 400 | НО | 5000 | 2...4 недели | 4630 руб. |
| N66431 | 600 | НО | 500 | НО | 5000 | 2...4 недели | 4630 руб. |
| N66432 | 700 | НО | 500 | НО | 5000 | 2...4 недели | 4630 руб. |
| N66433 | 800 | НО | 500 | НО | 5000 | 2...4 недели | 4630 руб. |
| N66434 | 900 | НО | 500 | НО | 5000 | 2...4 недели | 4630 руб. |
| N66435 | 1000 | НО | 500 | НО | 5000 | 2...4 недели | 4630 руб. |
| N66436 | 600 | НЗ | 500 | НО | 5000 | 2...4 недели | 4630 руб. |
| N66437 | 700 | НЗ | 500 | НО | 5000 | 2...4 недели | 4630 руб. |
| N66438 | 800 | НЗ | 500 | НО | 5000 | 2...4 недели | 4630 руб. |
| N66439 | 900 | НЗ | 500 | НО | 5000 | 2...4 недели | 4630 руб. |
| N66440 | 1000 | НЗ | 500 | НО | 5000 | 2...4 недели | 4630 руб. |
| N66441 | 700 | НО | 600 | НО | 5000 | 2...4 недели | 4630 руб. |
| N66442 | 800 | НО | 600 | НО | 5000 | 2...4 недели | 4630 руб. |
| N66443 | 900 | НО | 600 | НО | 5000 | 2...4 недели | 4630 руб. |
| N66444 | 1000 | НО | 600 | НО | 5000 | 2...4 недели | 4630 руб. |
| N66445 | 700 | НЗ | 600 | НО | 5000 | 2...4 недели | 4630 руб. |
| N66446 | 800 | НЗ | 600 | НО | 5000 | 2...4 недели | 4630 руб. |
| N66447 | 900 | НЗ | 600 | НО | 5000 | 2...4 недели | 4630 руб. |
| N66448 | 1000 | НЗ | 600 | НО | 5000 | 2...4 недели | 4630 руб. |
| N66449 | 800 | НО | 700 | НО | 5000 | 2...4 недели | 4630 руб. |
| N66450 | 900 | НО | 700 | НО | 5000 | 2...4 недели | 4630 руб. |
| N66451 | 1000 | НО | 700 | НО | 5000 | 2...4 недели | 4630 руб. |
| N66452 | 800 | НЗ | 700 | НО | 5000 | 2...4 недели | 4630 руб. |
| N66453 | 900 | НЗ | 700 | НО | 5000 | 2...4 недели | 4630 руб. |
| N66454 | 1000 | НЗ | 700 | НО | 5000 | 2...4 недели | 4630 руб. |
| N66455 | 900 | НО | 800 | НО | 5000 | 2...4 недели | 4630 руб. |
| N66456 | 1000 | НО | 800 | НО | 5000 | 2...4 недели | 4630 руб. |
| N66457 | 900 | НЗ | 800 | НО | 5000 | 2...4 недели | 4630 руб. |
| N66458 | 1000 | НЗ | 800 | НО | 5000 | 2...4 недели | 4630 руб. |
| N66459 | 1000 | НО | 900 | НО | 5000 | 2...4 недели | 4630 руб. |
| N66460 | 1000 | НЗ | 900 | НО | 5000 | 2...4 недели | 4630 руб. |
| N66461 | 200 | НО | 100 | НЗ | 5000 | 2...4 недели | 4225 руб. |
| N66462 | 300 | НО | 100 | НЗ | 5000 | 2...4 недели | 4225 руб. |
| N66463 | 400 | НО | 100 | НЗ | 5000 | 2...4 недели | 4225 руб. |
| N66464 | 500 | НО | 100 | НЗ | 5000 | 2...4 недели | 4225 руб. |
| N66465 | 600 | НО | 100 | НЗ | 5000 | 2...4 недели | 4630 руб. |
| N66466 | 700 | НО | 100 | НЗ | 5000 | 2...4 недели | 4630 руб. |
| N66467 | 800 | НО | 100 | НЗ | 5000 | 2...4 недели | 4630 руб. |
| N66468 | 900 | НО | 100 | НЗ | 5000 | 2...4 недели | 4630 руб. |
| N66469 | 1000 | НО | 100 | НЗ | 5000 | 2...4 недели | 4630 руб. |
| N66470 | 200 | НЗ | 100 | НЗ | 5000 | 2...4 недели | 4225 руб. |
| N66471 | 300 | НЗ | 100 | НЗ | 5000 | 2...4 недели | 4225 руб. |
| N66472 | 400 | НЗ | 100 | НЗ | 5000 | 2...4 недели | 4225 руб. |
| N66473 | 500 | НЗ | 100 | НЗ | 5000 | 2...4 недели | 4225 руб. |
| N66474 | 600 | НЗ | 100 | НЗ | 5000 | 2...4 недели | 4630 руб. |
| N66475 | 700 | НЗ | 100 | НЗ | 5000 | 2...4 недели | 4630 руб. |
| N66476 | 800 | НЗ | 100 | НЗ | 5000 | 2...4 недели | 4630 руб. |
| N66477 | 900 | НЗ | 100 | НЗ | 5000 | 2...4 недели | 4630 руб. |
| N66478 | 1000 | НЗ | 100 | НЗ | 5000 | 2...4 недели | 4630 руб. |
| N66479 | 300 | НО | 200 | НЗ | 5000 | 2...4 недели | 4225 руб. |
| N66480 | 400 | НО | 200 | НЗ | 5000 | 2...4 недели | 4225 руб. |
| N66481 | 500 | НО | 200 | НЗ | 5000 | 2...4 недели | 4225 руб. |
| N66482 | 600 | НО | 200 | НЗ | 5000 | 2...4 недели | 4630 руб. |
| N66483 | 700 | НО | 200 | НЗ | 5000 | 2...4 недели | 4630 руб. |
| N66484 | 800 | НО | 200 | НЗ | 5000 | 2...4 недели | 4630 руб. |
| N66485 | 900 | НО | 200 | НЗ | 5000 | 2...4 недели | 4630 руб. |
| N66486 | 1000 | НО | 200 | НЗ | 5000 | 2...4 недели | 4630 руб. |
| N66487 | 300 | НЗ | 200 | НЗ | 5000 | 2...4 недели | 4225 руб. |
| N66488 | 400 | НЗ | 200 | НЗ | 5000 | 2...4 недели | 4225 руб. |
| N66489 | 500 | НЗ | 200 | НЗ | 5000 | 2...4 недели | 4225 руб. |
| N66490 | 600 | НЗ | 200 | НЗ | 5000 | 2...4 недели | 4630 руб. |
| N66491 | 700 | НЗ | 200 | НЗ | 5000 | 2...4 недели | 4630 руб. |
| N66492 | 800 | НЗ | 200 | НЗ | 5000 | 2...4 недели | 4630 руб. |
| N66493 | 900 | НЗ | 200 | НЗ | 5000 | 2...4 недели | 4630 руб. |
| N66494 | 1000 | НЗ | 200 | НЗ | 5000 | 2...4 недели | 4630 руб. |
| N66495 | 400 | НО | 300 | НЗ | 5000 | 2...4 недели | 4225 руб. |
| N66496 | 500 | НО | 300 | НЗ | 5000 | 2...4 недели | 4225 руб. |
| N66497 | 600 | НО | 300 | НЗ | 5000 | 2...4 недели | 4630 руб. |
| N66498 | 700 | НО | 300 | НЗ | 5000 | 2...4 недели | 4630 руб. |
| N66499 | 800 | НО | 300 | НЗ | 5000 | 2...4 недели | 4630 руб. |
| N66500 | 900 | НО | 300 | НЗ | 5000 | 2...4 недели | 4630 руб. |
| N66501 | 1000 | НО | 300 | НЗ | 5000 | 2...4 недели | 4630 руб. |
| N66502 | 400 | НЗ | 300 | НЗ | 5000 | 2...4 недели | 4225 руб. |
| N66503 | 500 | НЗ | 300 | НЗ | 5000 | 2...4 недели | 4225 руб. |
| N66504 | 600 | НЗ | 300 | НЗ | 5000 | 2...4 недели | 4630 руб. |
| N66505 | 700 | НЗ | 300 | НЗ | 5000 | 2...4 недели | 4630 руб. |
| N66506 | 800 | НЗ | 300 | НЗ | 5000 | 2...4 недели | 4630 руб. |
| N66507 | 900 | НЗ | 300 | НЗ | 5000 | 2...4 недели | 4630 руб. |
| N66508 | 1000 | НЗ | 300 | НЗ | 5000 | 2...4 недели | 4630 руб. |
| N66509 | 500 | НО | 400 | НЗ | 5000 | 2...4 недели | 4225 руб. |
| N66510 | 600 | НО | 400 | НЗ | 5000 | 2...4 недели | 4630 руб. |
| N66511 | 700 | НО | 400 | НЗ | 5000 | 2...4 недели | 4630 руб. |
| N66512 | 800 | НО | 400 | НЗ | 5000 | 2...4 недели | 4630 руб. |
| N66513 | 900 | НО | 400 | НЗ | 5000 | 2...4 недели | 4630 руб. |
| N66514 | 1000 | НО | 400 | НЗ | 5000 | 2...4 недели | 4630 руб. |
| N66515 | 500 | НЗ | 400 | НЗ | 5000 | 2...4 недели | 4225 руб. |
| N66516 | 600 | НЗ | 400 | НЗ | 5000 | 2...4 недели | 4630 руб. |
| N66517 | 700 | НЗ | 400 | НЗ | 5000 | 2...4 недели | 4630 руб. |
| N66518 | 800 | НЗ | 400 | НЗ | 5000 | 2...4 недели | 4630 руб. |
| N66519 | 900 | НЗ | 400 | НЗ | 5000 | 2...4 недели | 4630 руб. |
| N66520 | 1000 | НЗ | 400 | НЗ | 5000 | 2...4 недели | 4630 руб. |
| N66521 | 600 | НО | 500 | НЗ | 5000 | 2...4 недели | 4630 руб. |
| N66522 | 700 | НО | 500 | НЗ | 5000 | 2...4 недели | 4630 руб. |
| N66523 | 800 | НО | 500 | НЗ | 5000 | 2...4 недели | 4630 руб. |
| N66524 | 900 | НО | 500 | НЗ | 5000 | 2...4 недели | 4630 руб. |
| N66525 | 1000 | НО | 500 | НЗ | 5000 | 2...4 недели | 4630 руб. |
| N66526 | 600 | НЗ | 500 | НЗ | 5000 | 2...4 недели | 4630 руб. |
| N66527 | 700 | НЗ | 500 | НЗ | 5000 | 2...4 недели | 4630 руб. |
| N66528 | 800 | НЗ | 500 | НЗ | 5000 | 2...4 недели | 4630 руб. |
| N66529 | 900 | НЗ | 500 | НЗ | 5000 | 2...4 недели | 4630 руб. |
| N66530 | 1000 | НЗ | 500 | НЗ | 5000 | 2...4 недели | 4630 руб. |
| N66531 | 700 | НО | 600 | НЗ | 5000 | 2...4 недели | 4630 руб. |
| N66532 | 800 | НО | 600 | НЗ | 5000 | 2...4 недели | 4630 руб. |
| N66533 | 900 | НО | 600 | НЗ | 5000 | 2...4 недели | 4630 руб. |
| N66534 | 1000 | НО | 600 | НЗ | 5000 | 2...4 недели | 4630 руб. |
| N66535 | 700 | НЗ | 600 | НЗ | 5000 | 2...4 недели | 4630 руб. |
| N66536 | 800 | НЗ | 600 | НЗ | 5000 | 2...4 недели | 4630 руб. |
| N66537 | 900 | НЗ | 600 | НЗ | 5000 | 2...4 недели | 4630 руб. |
| N66538 | 1000 | НЗ | 600 | НЗ | 5000 | 2...4 недели | 4630 руб. |
| N66539 | 800 | НО | 700 | НЗ | 5000 | 2...4 недели | 4630 руб. |
| N66540 | 900 | НО | 700 | НЗ | 5000 | 2...4 недели | 4630 руб. |
| N66541 | 1000 | НО | 700 | НЗ | 5000 | 2...4 недели | 4630 руб. |
| N66542 | 800 | НЗ | 700 | НЗ | 5000 | 2...4 недели | 4630 руб. |
| N66543 | 900 | НЗ | 700 | НЗ | 5000 | 2...4 недели | 4630 руб. |
| N66544 | 1000 | НЗ | 700 | НЗ | 5000 | 2...4 недели | 4630 руб. |
| N66545 | 900 | НО | 800 | НЗ | 5000 | 2...4 недели | 4630 руб. |
| N66546 | 1000 | НО | 800 | НЗ | 5000 | 2...4 недели | 4630 руб. |
| N66547 | 900 | НЗ | 800 | НЗ | 5000 | 2...4 недели | 4630 руб. |
| N66548 | 1000 | НЗ | 800 | НЗ | 5000 | 2...4 недели | 4630 руб. |
| N66549 | 1000 | НО | 900 | НЗ | 5000 | 2...4 недели | 4630 руб. |
| N66550 | 1000 | НЗ | 900 | НЗ | 5000 | 2...4 недели | 4630 руб. |
| N65651 | 200 | НО | 100 | НО | 1000 | 2...4 недели | 3277 руб. |
| N65652 | 300 | НО | 100 | НО | 1000 | 2...4 недели | 3277 руб. |
| N65653 | 400 | НО | 100 | НО | 1000 | 2...4 недели | 3277 руб. |
| N65654 | 500 | НО | 100 | НО | 1000 | 2...4 недели | 3277 руб. |
| N65655 | 600 | НО | 100 | НО | 1000 | 2...4 недели | 3682 руб. |
| N65656 | 700 | НО | 100 | НО | 1000 | 2...4 недели | 3682 руб. |
| N65657 | 800 | НО | 100 | НО | 1000 | 2...4 недели | 3682 руб. |
| N65658 | 900 | НО | 100 | НО | 1000 | 2...4 недели | 3682 руб. |
| N65659 | 1000 | НО | 100 | НО | 1000 | 2...4 недели | 3682 руб. |
| N65660 | 200 | НЗ | 100 | НО | 1000 | 2...4 недели | 3277 руб. |
| N65661 | 300 | НЗ | 100 | НО | 1000 | 2...4 недели | 3277 руб. |
| N65662 | 400 | НЗ | 100 | НО | 1000 | 2...4 недели | 3277 руб. |
| N65663 | 500 | НЗ | 100 | НО | 1000 | 2...4 недели | 3277 руб. |
| N65664 | 600 | НЗ | 100 | НО | 1000 | 2...4 недели | 3682 руб. |
| N65665 | 700 | НЗ | 100 | НО | 1000 | 2...4 недели | 3682 руб. |
| N65666 | 800 | НЗ | 100 | НО | 1000 | 2...4 недели | 3682 руб. |
| N65667 | 900 | НЗ | 100 | НО | 1000 | 2...4 недели | 3682 руб. |
| N65668 | 1000 | НЗ | 100 | НО | 1000 | 2...4 недели | 3682 руб. |
| N65669 | 300 | НО | 200 | НО | 1000 | 2...4 недели | 3277 руб. |
| N65670 | 400 | НО | 200 | НО | 1000 | 2...4 недели | 3277 руб. |
| N65671 | 500 | НО | 200 | НО | 1000 | 2...4 недели | 3277 руб. |
| N65672 | 600 | НО | 200 | НО | 1000 | 2...4 недели | 3682 руб. |
| N65673 | 700 | НО | 200 | НО | 1000 | 2...4 недели | 3682 руб. |
| N65674 | 800 | НО | 200 | НО | 1000 | 2...4 недели | 3682 руб. |
| N65675 | 900 | НО | 200 | НО | 1000 | 2...4 недели | 3682 руб. |
| N65676 | 1000 | НО | 200 | НО | 1000 | 2...4 недели | 3682 руб. |
| N65677 | 300 | НЗ | 200 | НО | 1000 | 2...4 недели | 3277 руб. |
| N65678 | 400 | НЗ | 200 | НО | 1000 | 2...4 недели | 3277 руб. |
| N65679 | 500 | НЗ | 200 | НО | 1000 | 2...4 недели | 3277 руб. |
| N65680 | 600 | НЗ | 200 | НО | 1000 | 2...4 недели | 3682 руб. |
| N65681 | 700 | НЗ | 200 | НО | 1000 | 2...4 недели | 3682 руб. |
| N65682 | 800 | НЗ | 200 | НО | 1000 | 2...4 недели | 3682 руб. |
| N65683 | 900 | НЗ | 200 | НО | 1000 | 2...4 недели | 3682 руб. |
| N65684 | 1000 | НЗ | 200 | НО | 1000 | 2...4 недели | 3682 руб. |
| N65685 | 400 | НО | 300 | НО | 1000 | 2...4 недели | 3277 руб. |
| N65686 | 500 | НО | 300 | НО | 1000 | 2...4 недели | 3277 руб. |
| N65687 | 600 | НО | 300 | НО | 1000 | 2...4 недели | 3682 руб. |
| N65688 | 700 | НО | 300 | НО | 1000 | 2...4 недели | 3682 руб. |
| N65689 | 800 | НО | 300 | НО | 1000 | 2...4 недели | 3682 руб. |
| N65690 | 900 | НО | 300 | НО | 1000 | 2...4 недели | 3682 руб. |
| N65691 | 1000 | НО | 300 | НО | 1000 | 2...4 недели | 3682 руб. |
| N65692 | 400 | НЗ | 300 | НО | 1000 | 2...4 недели | 3277 руб. |
| N65693 | 500 | НЗ | 300 | НО | 1000 | 2...4 недели | 3277 руб. |
| N65694 | 600 | НЗ | 300 | НО | 1000 | 2...4 недели | 3682 руб. |
| N65695 | 700 | НЗ | 300 | НО | 1000 | 2...4 недели | 3682 руб. |
| N65696 | 800 | НЗ | 300 | НО | 1000 | 2...4 недели | 3682 руб. |
| N65697 | 900 | НЗ | 300 | НО | 1000 | 2...4 недели | 3682 руб. |
| N65698 | 1000 | НЗ | 300 | НО | 1000 | 2...4 недели | 3682 руб. |
| N65699 | 500 | НО | 400 | НО | 1000 | 2...4 недели | 3277 руб. |
| N65700 | 600 | НО | 400 | НО | 1000 | 2...4 недели | 3682 руб. |
| N65701 | 700 | НО | 400 | НО | 1000 | 2...4 недели | 3682 руб. |
| N65702 | 800 | НО | 400 | НО | 1000 | 2...4 недели | 3682 руб. |
| N65703 | 900 | НО | 400 | НО | 1000 | 2...4 недели | 3682 руб. |
| N65704 | 1000 | НО | 400 | НО | 1000 | 2...4 недели | 3682 руб. |
| N65705 | 500 | НЗ | 400 | НО | 1000 | 2...4 недели | 3277 руб. |
| N65706 | 600 | НЗ | 400 | НО | 1000 | 2...4 недели | 3682 руб. |
| N65707 | 700 | НЗ | 400 | НО | 1000 | 2...4 недели | 3682 руб. |
| N65708 | 800 | НЗ | 400 | НО | 1000 | 2...4 недели | 3682 руб. |
| N65709 | 900 | НЗ | 400 | НО | 1000 | 2...4 недели | 3682 руб. |
| N65710 | 1000 | НЗ | 400 | НО | 1000 | 2...4 недели | 3682 руб. |
| N65711 | 600 | НО | 500 | НО | 1000 | 2...4 недели | 3682 руб. |
| N65712 | 700 | НО | 500 | НО | 1000 | 2...4 недели | 3682 руб. |
| N65713 | 800 | НО | 500 | НО | 1000 | 2...4 недели | 3682 руб. |
| N65714 | 900 | НО | 500 | НО | 1000 | 2...4 недели | 3682 руб. |
| N65715 | 1000 | НО | 500 | НО | 1000 | 2...4 недели | 3682 руб. |
| N65716 | 600 | НЗ | 500 | НО | 1000 | 2...4 недели | 3682 руб. |
| N65717 | 700 | НЗ | 500 | НО | 1000 | 2...4 недели | 3682 руб. |
| N65718 | 800 | НЗ | 500 | НО | 1000 | 2...4 недели | 3682 руб. |
| N65719 | 900 | НЗ | 500 | НО | 1000 | 2...4 недели | 3682 руб. |
| N65720 | 1000 | НЗ | 500 | НО | 1000 | 2...4 недели | 3682 руб. |
| N65721 | 700 | НО | 600 | НО | 1000 | 2...4 недели | 3682 руб. |
| N65722 | 800 | НО | 600 | НО | 1000 | 2...4 недели | 3682 руб. |
| N65723 | 900 | НО | 600 | НО | 1000 | 2...4 недели | 3682 руб. |
| N65724 | 1000 | НО | 600 | НО | 1000 | 2...4 недели | 3682 руб. |
| N65725 | 700 | НЗ | 600 | НО | 1000 | 2...4 недели | 3682 руб. |
| N65726 | 800 | НЗ | 600 | НО | 1000 | 2...4 недели | 3682 руб. |
| N65727 | 900 | НЗ | 600 | НО | 1000 | 2...4 недели | 3682 руб. |
| N65728 | 1000 | НЗ | 600 | НО | 1000 | 2...4 недели | 3682 руб. |
| N65729 | 800 | НО | 700 | НО | 1000 | 2...4 недели | 3682 руб. |
| N65730 | 900 | НО | 700 | НО | 1000 | 2...4 недели | 3682 руб. |
| N65731 | 1000 | НО | 700 | НО | 1000 | 2...4 недели | 3682 руб. |
| N65732 | 800 | НЗ | 700 | НО | 1000 | 2...4 недели | 3682 руб. |
| N65733 | 900 | НЗ | 700 | НО | 1000 | 2...4 недели | 3682 руб. |
| N65734 | 1000 | НЗ | 700 | НО | 1000 | 2...4 недели | 3682 руб. |
| N65735 | 900 | НО | 800 | НО | 1000 | 2...4 недели | 3682 руб. |
| N65736 | 1000 | НО | 800 | НО | 1000 | 2...4 недели | 3682 руб. |
| N65737 | 900 | НЗ | 800 | НО | 1000 | 2...4 недели | 3682 руб. |
| N65738 | 1000 | НЗ | 800 | НО | 1000 | 2...4 недели | 3682 руб. |
| N65739 | 1000 | НО | 900 | НО | 1000 | 2...4 недели | 3682 руб. |
| N65740 | 1000 | НЗ | 900 | НО | 1000 | 2...4 недели | 3682 руб. |
| N65741 | 200 | НО | 100 | НЗ | 1000 | 2...4 недели | 3277 руб. |
| N65742 | 300 | НО | 100 | НЗ | 1000 | 2...4 недели | 3277 руб. |
| N65743 | 400 | НО | 100 | НЗ | 1000 | 2...4 недели | 3277 руб. |
| N65744 | 500 | НО | 100 | НЗ | 1000 | 2...4 недели | 3277 руб. |
| N65745 | 600 | НО | 100 | НЗ | 1000 | 2...4 недели | 3682 руб. |
| N65746 | 700 | НО | 100 | НЗ | 1000 | 2...4 недели | 3682 руб. |
| N65747 | 800 | НО | 100 | НЗ | 1000 | 2...4 недели | 3682 руб. |
| N65748 | 900 | НО | 100 | НЗ | 1000 | 2...4 недели | 3682 руб. |
| N65749 | 1000 | НО | 100 | НЗ | 1000 | 2...4 недели | 3682 руб. |
| N65750 | 200 | НЗ | 100 | НЗ | 1000 | 2...4 недели | 3277 руб. |
| N65751 | 300 | НЗ | 100 | НЗ | 1000 | 2...4 недели | 3277 руб. |
| N65752 | 400 | НЗ | 100 | НЗ | 1000 | 2...4 недели | 3277 руб. |
| N65753 | 500 | НЗ | 100 | НЗ | 1000 | 2...4 недели | 3277 руб. |
| N65754 | 600 | НЗ | 100 | НЗ | 1000 | 2...4 недели | 3682 руб. |
| N65755 | 700 | НЗ | 100 | НЗ | 1000 | 2...4 недели | 3682 руб. |
| N65756 | 800 | НЗ | 100 | НЗ | 1000 | 2...4 недели | 3682 руб. |
| N65757 | 900 | НЗ | 100 | НЗ | 1000 | 2...4 недели | 3682 руб. |
| N65758 | 1000 | НЗ | 100 | НЗ | 1000 | 2...4 недели | 3682 руб. |
| N65759 | 300 | НО | 200 | НЗ | 1000 | 2...4 недели | 3277 руб. |
| N65760 | 400 | НО | 200 | НЗ | 1000 | 2...4 недели | 3277 руб. |
| N65761 | 500 | НО | 200 | НЗ | 1000 | 2...4 недели | 3277 руб. |
| N65762 | 600 | НО | 200 | НЗ | 1000 | 2...4 недели | 3682 руб. |
| N65763 | 700 | НО | 200 | НЗ | 1000 | 2...4 недели | 3682 руб. |
| N65764 | 800 | НО | 200 | НЗ | 1000 | 2...4 недели | 3682 руб. |
| N65765 | 900 | НО | 200 | НЗ | 1000 | 2...4 недели | 3682 руб. |
| N65766 | 1000 | НО | 200 | НЗ | 1000 | 2...4 недели | 3682 руб. |
| N65767 | 300 | НЗ | 200 | НЗ | 1000 | 2...4 недели | 3277 руб. |
| N65768 | 400 | НЗ | 200 | НЗ | 1000 | 2...4 недели | 3277 руб. |
| N65769 | 500 | НЗ | 200 | НЗ | 1000 | 2...4 недели | 3277 руб. |
| N65770 | 600 | НЗ | 200 | НЗ | 1000 | 2...4 недели | 3682 руб. |
| N65771 | 700 | НЗ | 200 | НЗ | 1000 | 2...4 недели | 3682 руб. |
| N65772 | 800 | НЗ | 200 | НЗ | 1000 | 2...4 недели | 3682 руб. |
| N65773 | 900 | НЗ | 200 | НЗ | 1000 | 2...4 недели | 3682 руб. |
| N65774 | 1000 | НЗ | 200 | НЗ | 1000 | 2...4 недели | 3682 руб. |
| N65775 | 400 | НО | 300 | НЗ | 1000 | 2...4 недели | 3277 руб. |
| N65776 | 500 | НО | 300 | НЗ | 1000 | 2...4 недели | 3277 руб. |
| N65777 | 600 | НО | 300 | НЗ | 1000 | 2...4 недели | 3682 руб. |
| N65778 | 700 | НО | 300 | НЗ | 1000 | 2...4 недели | 3682 руб. |
| N65779 | 800 | НО | 300 | НЗ | 1000 | 2...4 недели | 3682 руб. |
| N65780 | 900 | НО | 300 | НЗ | 1000 | 2...4 недели | 3682 руб. |
| N65781 | 1000 | НО | 300 | НЗ | 1000 | 2...4 недели | 3682 руб. |
| N65782 | 400 | НЗ | 300 | НЗ | 1000 | 2...4 недели | 3277 руб. |
| N65783 | 500 | НЗ | 300 | НЗ | 1000 | 2...4 недели | 3277 руб. |
| N65784 | 600 | НЗ | 300 | НЗ | 1000 | 2...4 недели | 3682 руб. |
| N65785 | 700 | НЗ | 300 | НЗ | 1000 | 2...4 недели | 3682 руб. |
| N65786 | 800 | НЗ | 300 | НЗ | 1000 | 2...4 недели | 3682 руб. |
| N65787 | 900 | НЗ | 300 | НЗ | 1000 | 2...4 недели | 3682 руб. |
| N65788 | 1000 | НЗ | 300 | НЗ | 1000 | 2...4 недели | 3682 руб. |
| N65789 | 500 | НО | 400 | НЗ | 1000 | 2...4 недели | 3277 руб. |
| N65790 | 600 | НО | 400 | НЗ | 1000 | 2...4 недели | 3682 руб. |
| N65791 | 700 | НО | 400 | НЗ | 1000 | 2...4 недели | 3682 руб. |
| N65792 | 800 | НО | 400 | НЗ | 1000 | 2...4 недели | 3682 руб. |
| N65793 | 900 | НО | 400 | НЗ | 1000 | 2...4 недели | 3682 руб. |
| N65794 | 1000 | НО | 400 | НЗ | 1000 | 2...4 недели | 3682 руб. |
| N65795 | 500 | НЗ | 400 | НЗ | 1000 | 2...4 недели | 3277 руб. |
| N65796 | 600 | НЗ | 400 | НЗ | 1000 | 2...4 недели | 3682 руб. |
| N65797 | 700 | НЗ | 400 | НЗ | 1000 | 2...4 недели | 3682 руб. |
| N65798 | 800 | НЗ | 400 | НЗ | 1000 | 2...4 недели | 3682 руб. |
| N65799 | 900 | НЗ | 400 | НЗ | 1000 | 2...4 недели | 3682 руб. |
| N65800 | 1000 | НЗ | 400 | НЗ | 1000 | 2...4 недели | 3682 руб. |
| N65801 | 600 | НО | 500 | НЗ | 1000 | 2...4 недели | 3682 руб. |
| N65802 | 700 | НО | 500 | НЗ | 1000 | 2...4 недели | 3682 руб. |
| N65803 | 800 | НО | 500 | НЗ | 1000 | 2...4 недели | 3682 руб. |
| N65804 | 900 | НО | 500 | НЗ | 1000 | 2...4 недели | 3682 руб. |
| N65805 | 1000 | НО | 500 | НЗ | 1000 | 2...4 недели | 3682 руб. |
| N65806 | 600 | НЗ | 500 | НЗ | 1000 | 2...4 недели | 3682 руб. |
| N65807 | 700 | НЗ | 500 | НЗ | 1000 | 2...4 недели | 3682 руб. |
| N65808 | 800 | НЗ | 500 | НЗ | 1000 | 2...4 недели | 3682 руб. |
| N65809 | 900 | НЗ | 500 | НЗ | 1000 | 2...4 недели | 3682 руб. |
| N65810 | 1000 | НЗ | 500 | НЗ | 1000 | 2...4 недели | 3682 руб. |
| N65811 | 700 | НО | 600 | НЗ | 1000 | 2...4 недели | 3682 руб. |
| N65812 | 800 | НО | 600 | НЗ | 1000 | 2...4 недели | 3682 руб. |
| N65813 | 900 | НО | 600 | НЗ | 1000 | 2...4 недели | 3682 руб. |
| N65814 | 1000 | НО | 600 | НЗ | 1000 | 2...4 недели | 3682 руб. |
| N65815 | 700 | НЗ | 600 | НЗ | 1000 | 2...4 недели | 3682 руб. |
| N65816 | 800 | НЗ | 600 | НЗ | 1000 | 2...4 недели | 3682 руб. |
| N65817 | 900 | НЗ | 600 | НЗ | 1000 | 2...4 недели | 3682 руб. |
| N65818 | 1000 | НЗ | 600 | НЗ | 1000 | 2...4 недели | 3682 руб. |
| N65819 | 800 | НО | 700 | НЗ | 1000 | 2...4 недели | 3682 руб. |
| N65820 | 900 | НО | 700 | НЗ | 1000 | 2...4 недели | 3682 руб. |
| N65821 | 1000 | НО | 700 | НЗ | 1000 | 2...4 недели | 3682 руб. |
| N65822 | 800 | НЗ | 700 | НЗ | 1000 | 2...4 недели | 3682 руб. |
| N65823 | 900 | НЗ | 700 | НЗ | 1000 | 2...4 недели | 3682 руб. |
| N65824 | 1000 | НЗ | 700 | НЗ | 1000 | 2...4 недели | 3682 руб. |
| N65825 | 900 | НО | 800 | НЗ | 1000 | 2...4 недели | 3682 руб. |
| N65826 | 1000 | НО | 800 | НЗ | 1000 | 2...4 недели | 3682 руб. |
| N65827 | 900 | НЗ | 800 | НЗ | 1000 | 2...4 недели | 3682 руб. |
| N65828 | 1000 | НЗ | 800 | НЗ | 1000 | 2...4 недели | 3682 руб. |
| N65829 | 1000 | НО | 900 | НЗ | 1000 | 2...4 недели | 3682 руб. |
| N65830 | 1000 | НЗ | 900 | НЗ | 1000 | 2...4 недели | 3682 руб. |
| N65831 | 200 | НО | 100 | НО | 2000 | 2...4 недели | 3514 руб. |
| N65832 | 300 | НО | 100 | НО | 2000 | 2...4 недели | 3514 руб. |
| N65833 | 400 | НО | 100 | НО | 2000 | 2...4 недели | 3514 руб. |
| N65834 | 500 | НО | 100 | НО | 2000 | 2...4 недели | 3514 руб. |
| N65835 | 600 | НО | 100 | НО | 2000 | 2...4 недели | 3919 руб. |
| N65836 | 700 | НО | 100 | НО | 2000 | 2...4 недели | 3919 руб. |
| N65837 | 800 | НО | 100 | НО | 2000 | 2...4 недели | 3919 руб. |
| N65838 | 900 | НО | 100 | НО | 2000 | 2...4 недели | 3919 руб. |
| N65839 | 1000 | НО | 100 | НО | 2000 | 2...4 недели | 3919 руб. |
| N65840 | 200 | НЗ | 100 | НО | 2000 | 2...4 недели | 3514 руб. |
| N65841 | 300 | НЗ | 100 | НО | 2000 | 2...4 недели | 3514 руб. |
| N65842 | 400 | НЗ | 100 | НО | 2000 | 2...4 недели | 3514 руб. |
| N65843 | 500 | НЗ | 100 | НО | 2000 | 2...4 недели | 3514 руб. |
| N65844 | 600 | НЗ | 100 | НО | 2000 | 2...4 недели | 3919 руб. |
| N65845 | 700 | НЗ | 100 | НО | 2000 | 2...4 недели | 3919 руб. |
| N65846 | 800 | НЗ | 100 | НО | 2000 | 2...4 недели | 3919 руб. |
| N65847 | 900 | НЗ | 100 | НО | 2000 | 2...4 недели | 3919 руб. |
| N65848 | 1000 | НЗ | 100 | НО | 2000 | 2...4 недели | 3919 руб. |
| N65849 | 300 | НО | 200 | НО | 2000 | 2...4 недели | 3514 руб. |
| N65850 | 400 | НО | 200 | НО | 2000 | 2...4 недели | 3514 руб. |
| N65851 | 500 | НО | 200 | НО | 2000 | 2...4 недели | 3514 руб. |
| N65852 | 600 | НО | 200 | НО | 2000 | 2...4 недели | 3919 руб. |
| N65853 | 700 | НО | 200 | НО | 2000 | 2...4 недели | 3919 руб. |
| N65854 | 800 | НО | 200 | НО | 2000 | 2...4 недели | 3919 руб. |
| N65855 | 900 | НО | 200 | НО | 2000 | 2...4 недели | 3919 руб. |
| N65856 | 1000 | НО | 200 | НО | 2000 | 2...4 недели | 3919 руб. |
| N65857 | 300 | НЗ | 200 | НО | 2000 | 2...4 недели | 3514 руб. |
| N65858 | 400 | НЗ | 200 | НО | 2000 | 2...4 недели | 3514 руб. |
| N65859 | 500 | НЗ | 200 | НО | 2000 | 2...4 недели | 3514 руб. |
| N65860 | 600 | НЗ | 200 | НО | 2000 | 2...4 недели | 3919 руб. |
| N65861 | 700 | НЗ | 200 | НО | 2000 | 2...4 недели | 3919 руб. |
| N65862 | 800 | НЗ | 200 | НО | 2000 | 2...4 недели | 3919 руб. |
| N65863 | 900 | НЗ | 200 | НО | 2000 | 2...4 недели | 3919 руб. |
| N65864 | 1000 | НЗ | 200 | НО | 2000 | 2...4 недели | 3919 руб. |
| N65865 | 400 | НО | 300 | НО | 2000 | 2...4 недели | 3514 руб. |
| N65866 | 500 | НО | 300 | НО | 2000 | 2...4 недели | 3514 руб. |
| N65867 | 600 | НО | 300 | НО | 2000 | 2...4 недели | 3919 руб. |
| N65868 | 700 | НО | 300 | НО | 2000 | 2...4 недели | 3919 руб. |
| N65869 | 800 | НО | 300 | НО | 2000 | 2...4 недели | 3919 руб. |
| N65870 | 900 | НО | 300 | НО | 2000 | 2...4 недели | 3919 руб. |
| N65871 | 1000 | НО | 300 | НО | 2000 | 2...4 недели | 3919 руб. |
| N65872 | 400 | НЗ | 300 | НО | 2000 | 2...4 недели | 3514 руб. |
| N65873 | 500 | НЗ | 300 | НО | 2000 | 2...4 недели | 3514 руб. |
| N65874 | 600 | НЗ | 300 | НО | 2000 | 2...4 недели | 3919 руб. |
| N65875 | 700 | НЗ | 300 | НО | 2000 | 2...4 недели | 3919 руб. |
| N65876 | 800 | НЗ | 300 | НО | 2000 | 2...4 недели | 3919 руб. |
| N65877 | 900 | НЗ | 300 | НО | 2000 | 2...4 недели | 3919 руб. |
| N65878 | 1000 | НЗ | 300 | НО | 2000 | 2...4 недели | 3919 руб. |
| N65879 | 500 | НО | 400 | НО | 2000 | 2...4 недели | 3514 руб. |
| N65880 | 600 | НО | 400 | НО | 2000 | 2...4 недели | 3919 руб. |
| N65881 | 700 | НО | 400 | НО | 2000 | 2...4 недели | 3919 руб. |
| N65882 | 800 | НО | 400 | НО | 2000 | 2...4 недели | 3919 руб. |
| N65883 | 900 | НО | 400 | НО | 2000 | 2...4 недели | 3919 руб. |
| N65884 | 1000 | НО | 400 | НО | 2000 | 2...4 недели | 3919 руб. |
| N65885 | 500 | НЗ | 400 | НО | 2000 | 2...4 недели | 3514 руб. |
| N65886 | 600 | НЗ | 400 | НО | 2000 | 2...4 недели | 3919 руб. |
| N65887 | 700 | НЗ | 400 | НО | 2000 | 2...4 недели | 3919 руб. |
| N65888 | 800 | НЗ | 400 | НО | 2000 | 2...4 недели | 3919 руб. |
| N65889 | 900 | НЗ | 400 | НО | 2000 | 2...4 недели | 3919 руб. |
| N65890 | 1000 | НЗ | 400 | НО | 2000 | 2...4 недели | 3919 руб. |
| N65891 | 600 | НО | 500 | НО | 2000 | 2...4 недели | 3919 руб. |
| N65892 | 700 | НО | 500 | НО | 2000 | 2...4 недели | 3919 руб. |
| N65893 | 800 | НО | 500 | НО | 2000 | 2...4 недели | 3919 руб. |
| N65894 | 900 | НО | 500 | НО | 2000 | 2...4 недели | 3919 руб. |
| N65895 | 1000 | НО | 500 | НО | 2000 | 2...4 недели | 3919 руб. |
| N65896 | 600 | НЗ | 500 | НО | 2000 | 2...4 недели | 3919 руб. |
| N65897 | 700 | НЗ | 500 | НО | 2000 | 2...4 недели | 3919 руб. |
| N65898 | 800 | НЗ | 500 | НО | 2000 | 2...4 недели | 3919 руб. |
| N65899 | 900 | НЗ | 500 | НО | 2000 | 2...4 недели | 3919 руб. |
| N65900 | 1000 | НЗ | 500 | НО | 2000 | 2...4 недели | 3919 руб. |
| N65901 | 700 | НО | 600 | НО | 2000 | 2...4 недели | 3919 руб. |
| N65902 | 800 | НО | 600 | НО | 2000 | 2...4 недели | 3919 руб. |
| N65903 | 900 | НО | 600 | НО | 2000 | 2...4 недели | 3919 руб. |
| N65904 | 1000 | НО | 600 | НО | 2000 | 2...4 недели | 3919 руб. |
| N65905 | 700 | НЗ | 600 | НО | 2000 | 2...4 недели | 3919 руб. |
| N65906 | 800 | НЗ | 600 | НО | 2000 | 2...4 недели | 3919 руб. |
| N65907 | 900 | НЗ | 600 | НО | 2000 | 2...4 недели | 3919 руб. |
| N65908 | 1000 | НЗ | 600 | НО | 2000 | 2...4 недели | 3919 руб. |
| N65909 | 800 | НО | 700 | НО | 2000 | 2...4 недели | 3919 руб. |
| N65910 | 900 | НО | 700 | НО | 2000 | 2...4 недели | 3919 руб. |
| N65911 | 1000 | НО | 700 | НО | 2000 | 2...4 недели | 3919 руб. |
| N65912 | 800 | НЗ | 700 | НО | 2000 | 2...4 недели | 3919 руб. |
| N65913 | 900 | НЗ | 700 | НО | 2000 | 2...4 недели | 3919 руб. |
| N65914 | 1000 | НЗ | 700 | НО | 2000 | 2...4 недели | 3919 руб. |
| N65915 | 900 | НО | 800 | НО | 2000 | 2...4 недели | 3919 руб. |
| N65916 | 1000 | НО | 800 | НО | 2000 | 2...4 недели | 3919 руб. |
| N65917 | 900 | НЗ | 800 | НО | 2000 | 2...4 недели | 3919 руб. |
| N65918 | 1000 | НЗ | 800 | НО | 2000 | 2...4 недели | 3919 руб. |
| N65919 | 1000 | НО | 900 | НО | 2000 | 2...4 недели | 3919 руб. |
| N65920 | 1000 | НЗ | 900 | НО | 2000 | 2...4 недели | 3919 руб. |
| N65921 | 200 | НО | 100 | НЗ | 2000 | 2...4 недели | 3514 руб. |
| N65922 | 300 | НО | 100 | НЗ | 2000 | 2...4 недели | 3514 руб. |
| N65923 | 400 | НО | 100 | НЗ | 2000 | 2...4 недели | 3514 руб. |
| N65924 | 500 | НО | 100 | НЗ | 2000 | 2...4 недели | 3514 руб. |
| N65925 | 600 | НО | 100 | НЗ | 2000 | 2...4 недели | 3919 руб. |
| N65926 | 700 | НО | 100 | НЗ | 2000 | 2...4 недели | 3919 руб. |
| N65927 | 800 | НО | 100 | НЗ | 2000 | 2...4 недели | 3919 руб. |
| N65928 | 900 | НО | 100 | НЗ | 2000 | 2...4 недели | 3919 руб. |
| N65929 | 1000 | НО | 100 | НЗ | 2000 | 2...4 недели | 3919 руб. |
| N65930 | 200 | НЗ | 100 | НЗ | 2000 | 2...4 недели | 3514 руб. |
| N65931 | 300 | НЗ | 100 | НЗ | 2000 | 2...4 недели | 3514 руб. |
| N65932 | 400 | НЗ | 100 | НЗ | 2000 | 2...4 недели | 3514 руб. |
| N65933 | 500 | НЗ | 100 | НЗ | 2000 | 2...4 недели | 3514 руб. |
| N65934 | 600 | НЗ | 100 | НЗ | 2000 | 2...4 недели | 3919 руб. |
| N65935 | 700 | НЗ | 100 | НЗ | 2000 | 2...4 недели | 3919 руб. |
| N65936 | 800 | НЗ | 100 | НЗ | 2000 | 2...4 недели | 3919 руб. |
| N65937 | 900 | НЗ | 100 | НЗ | 2000 | 2...4 недели | 3919 руб. |
| N65938 | 1000 | НЗ | 100 | НЗ | 2000 | 2...4 недели | 3919 руб. |
| N65939 | 300 | НО | 200 | НЗ | 2000 | 2...4 недели | 3514 руб. |
| N65940 | 400 | НО | 200 | НЗ | 2000 | 2...4 недели | 3514 руб. |
| N65941 | 500 | НО | 200 | НЗ | 2000 | 2...4 недели | 3514 руб. |
| N65942 | 600 | НО | 200 | НЗ | 2000 | 2...4 недели | 3919 руб. |
| N65943 | 700 | НО | 200 | НЗ | 2000 | 2...4 недели | 3919 руб. |
| N65944 | 800 | НО | 200 | НЗ | 2000 | 2...4 недели | 3919 руб. |
| N65945 | 900 | НО | 200 | НЗ | 2000 | 2...4 недели | 3919 руб. |
| N65946 | 1000 | НО | 200 | НЗ | 2000 | 2...4 недели | 3919 руб. |
| N65947 | 300 | НЗ | 200 | НЗ | 2000 | 2...4 недели | 3514 руб. |
| N65948 | 400 | НЗ | 200 | НЗ | 2000 | 2...4 недели | 3514 руб. |
| N65949 | 500 | НЗ | 200 | НЗ | 2000 | 2...4 недели | 3514 руб. |
| N65950 | 600 | НЗ | 200 | НЗ | 2000 | 2...4 недели | 3919 руб. |
| Габаритные размеры |
![]() |
Обозначение при заказе
| Двухуровневые поплавковые датчики уровня ОВЕН ПДУ |
![]() Внимание! Полная длина датчиков ПДУ-1.2 составляет (L + 40) мм. |










